1. HOME
  2. 物件詳細

西院・最上階ワンルームの貸店舗

賃料: 7.7万円 専有面積:25.59㎡

物件名:ユニティービル(402)

所在地:京都府京都市右京区西院清水町

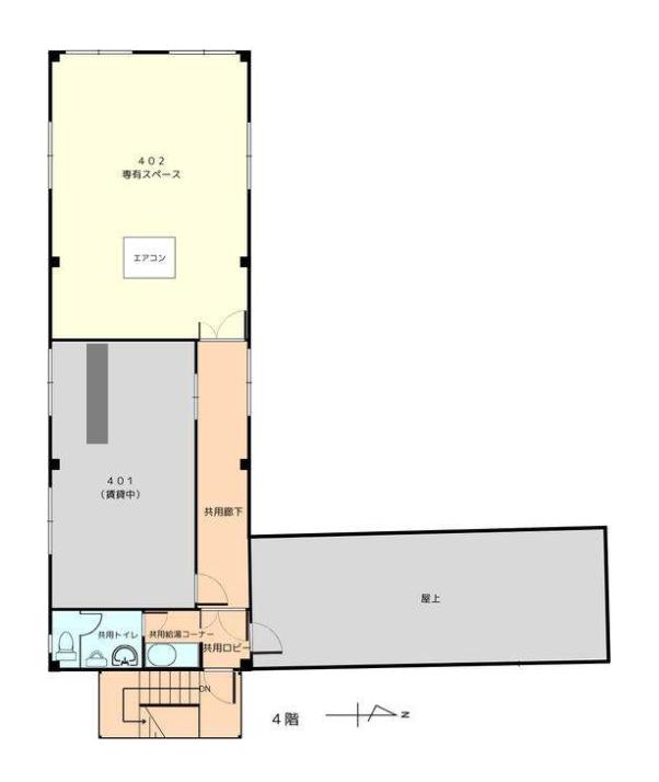
間取り

西院・最上階ワンルームの貸店舗

賃料: 7.7万円 専有面積:25.59㎡

物件名:ユニティービル(402)

所在地:京都府京都市右京区西院清水町

物件概要

京都市右京区西院清水町に位置する、事務所・店舗利用が可能な貸店舗区画です。建物は鉄骨造4階建の最上階4階部分で、専有面積は約7.74坪。ワンルームのシンプルな間取りのため、業態や人数に合わせてレイアウトを柔軟に組み立てやすい構成です。賃料は月額7万7,000円(税込)で、水道料は家賃に含まれています。契約期間は2年の普通借家契約です。共用部にトイレが設けられており、建物内にはバイク置場と駐輪場もあります。飲食店での利用は不可とされていますが、事務所利用やサロン、予約制サービスなど、静かな運営を前提とした業態であれば検討しやすい条件です。京都でテナントや貸店舗を探す中で、初期規模を抑えながら拠点を構えたい場合、京都 店舗デザインや店舗設計、店舗リノベーションを前提に、用途に応じた空間の使い方を整理しながら検討したい一件です。

物件番号 18530
物件名 ユニティービル(402)
所在地 京都府京都市右京区西院清水町
最寄駅/徒歩何分 阪急京都線 西院駅まで 徒歩14分
所在階 4階
賃料 7.7万円
保証金 3ヶ月
敷金・礼金 礼金 1ヶ月
専有面積 25.59㎡
建物構造 鉄骨造階
取引態様 仲介
最終更新日 2026/02/04 08:04

同じエリアの物件

この物件を見た人はこちらの物件も見ています

最近チェックした物件

  • 俵屋町京町家