1. HOME
  2. 物件詳細

西院・3階ワンルームの貸店舗

賃料: 7.15万円 専有面積:27.45㎡

物件名:ユニティービル(303)

所在地:京都府京都市右京区西院清水町

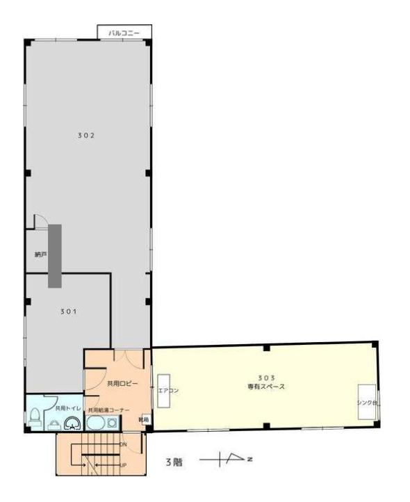
間取り

西院・3階ワンルームの貸店舗

賃料: 7.15万円 専有面積:27.45㎡

物件名:ユニティービル(303)

所在地:京都府京都市右京区西院清水町

物件概要

京都市右京区西院清水町に位置する、事務所・店舗利用が可能な貸店舗区画です。建物は鉄骨造4階建の3階部分で、専有面積は約8.3坪。間取りはワンルームで、シンプルな形状のため、作業内容や人数に合わせてレイアウトを組み立てやすい区画です。賃料は月額7万1,500円(税込)で、水道料は家賃に含まれています。契約期間は2年の普通借家契約です。共用部にトイレが設けられており、建物内にはバイク置場と駐輪場もあります。飲食利用は不可とされていますが、事務所や軽作業を伴う業態、予約制のサービスなどであれば検討しやすい条件といえます。京都でテナントや貸店舗を探す中で、初期規模を抑えた拠点づくりを考える場合、京都 店舗デザインや店舗設計、店舗リノベーションを前提に、用途に合わせた空間整理を行いながら検討したい一件です。

物件番号 18531
物件名 ユニティービル(303)
所在地 京都府京都市右京区西院清水町
最寄駅/徒歩何分 阪急京都線 西院駅まで 徒歩14分
所在階 3階
賃料 7.15万円
保証金 3ヶ月
敷金・礼金 礼金 1ヶ月
専有面積 27.45㎡
建物構造 鉄骨造階
取引態様 仲介
最終更新日 2026/02/04 08:00

同じエリアの物件

この物件を見た人はこちらの物件も見ています