1. HOME
  2. 物件詳細

西大路通面す|視認性の高いオフィスビル5階区画

賃料: 39.05万円 専有面積:177.44㎡

物件名:クラエンタービル(5F)

所在地:京都府京都市右京区西大路通高辻上る西院平町

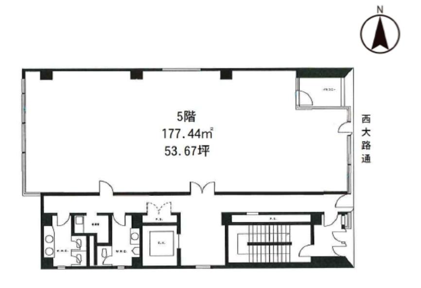
間取り

西大路通面す|視認性の高いオフィスビル5階区画

賃料: 39.05万円 専有面積:177.44㎡

物件名:クラエンタービル(5F)

所在地:京都府京都市右京区西大路通高辻上る西院平町

物件概要

阪急「西院」駅から徒歩4分、西大路通に面したオフィスビル「クラエンタービル」5階区画のご紹介です。 専有面積は約177.44m2(約53.67坪)で、ワンフロア利用が可能。ゆとりある空間設計が魅力です。 給湯室やトイレを備え、レイアウトの自由度も高く、事務所として快適に利用できます。 ビル内にはエレベーターや駐車場もあり、来客対応にも便利な立地です。 京都市右京区、西大路通沿いで事務所をお探しの方におすすめの物件です。

物件番号 17777
物件名 クラエンタービル(5F)
所在地 京都府京都市右京区西大路通高辻上る西院平町
最寄駅/徒歩何分 阪急京都線 西院駅まで 徒歩4分
所在階 5階
賃料 39.05万円
保証金 6ヶ月
専有面積 177.44㎡
建物構造 RC(鉄筋コンクリート)階
取引態様 仲介
最終更新日 2025/11/08 17:05

同じエリアの物件

この物件を見た人はこちらの物件も見ています