- HOME
- 物件詳細
物件詳細
京都駅徒歩圏内|約137m2のオフィス区画(ユーアイビル6階)
賃料: 91.63万円 専有面積:137.69㎡
物件名:ユーアイビル(6F)
所在地:京都府京都市下京区東洞院通七条下る東塩小路町
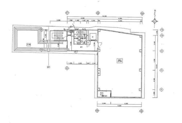
間取り
NEW
京都駅徒歩圏内|約137m2のオフィス区画(ユーアイビル6階)
賃料: 91.63万円 専有面積:137.69㎡
物件名:ユーアイビル(6F)
所在地:京都府京都市下京区東洞院通七条下る東塩小路町
物件概要
JR京都駅から徒歩約2分、地下鉄烏丸線「京都」駅からも徒歩約2分。東洞院通七条下るという京都駅エリアの中心部に位置する、オフィス向けテナント区画です。 建物は鉄骨造9階建で、2011年6月築。今回募集の区画は6階部分、専有面積は約137.69m2(約41.65坪)。天井高は約2,500mmで、広さを活かしたレイアウトがしやすいワンフロアタイプの空間です。賃料は月額833,000円(税別)で、共益費は賃料に含まれています。 エレベーター1基を備え、個別空調・共用トイレ・共用キッチンが利用可能。警備はALSOK対応で、24時間利用にも対応しています。光ファイバー(無償引込)も利用でき、ビジネス拠点としての設備も整っています。 京都駅エリアという立地から、京都市内だけでなく関西各方面へのアクセスも良好。約40坪超の広さを活かし、本社機能や支店、士業事務所などのオフィス用途に適した区画です。
| 物件番号 | 18824 |
|---|---|
| 物件名 | ユーアイビル(6F) |
| 所在地 | 京都府京都市下京区東洞院通七条下る東塩小路町 |
| 最寄駅/徒歩何分 | 京都市営地下鉄烏丸線 京都駅まで 徒歩3分 |
| 所在階 | 6階 |
| 賃料 | 91.63万円 |
| 保証金 | 10ヶ月 |
| 専有面積 | 137.69㎡ |
| 建物構造 | 鉄骨造階 |
| 取引態様 | 仲介 |
| 最終更新日 | 2026/04/10 16:35 |