1. HOME
  2. 物件詳細

北大路エリアの約15坪1階貸店舗

賃料: 14万円 専有面積:50.89㎡

物件名:TRビル(1F-南)

所在地:京都府京都市北区紫野西御所田町

NEW

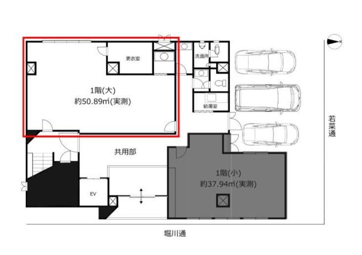
間取り

NEW

北大路エリアの約15坪1階貸店舗

賃料: 14万円 専有面積:50.89㎡

物件名:TRビル(1F-南)

所在地:京都府京都市北区紫野西御所田町

物件概要

北区紫野エリア、堀川通に面したテナントビルの1階区画です。地下鉄烏丸線北大路駅から徒歩圏内に位置し、住宅と店舗が混在する落ち着いた環境にあります。SRC造5階建の1階部分で、専有面積は約50.89m2(約15.39坪)。賃料は14万円と、広さとのバランスを見ながら検討しやすい条件です。室内はシンプルなワンフロア構成で、用途に応じたレイアウトを考えやすい間取り。共用部には給湯室や男女別トイレが設けられており、日常利用のしやすさにも配慮されています。事務所や物販、サービス店舗など、幅広い用途で検討しやすい区画です。

物件番号 19096
物件名 TRビル(1F-南)
所在地 京都府京都市北区紫野西御所田町
最寄駅/徒歩何分 京都市営地下鉄烏丸線 北大路駅まで 徒歩13分
所在階 1階
賃料 14万円
保証金 3ヶ月
専有面積 50.89㎡
建物構造 SRC(鉄骨鉄筋コンクリート)階
取引態様 仲介
最終更新日 2026/04/05 12:31

同じエリアの物件

この物件を見た人はこちらの物件も見ています