1. HOME
  2. 物件詳細

【賃料DOWN!!】四条烏丸徒歩1分、エステ居抜き区画

賃料: 57.2万円 専有面積:100.98㎡

物件名:四条ビヨンドビル(4F)

所在地:京都府京都市下京区四条通東洞院西入長刀鉾町

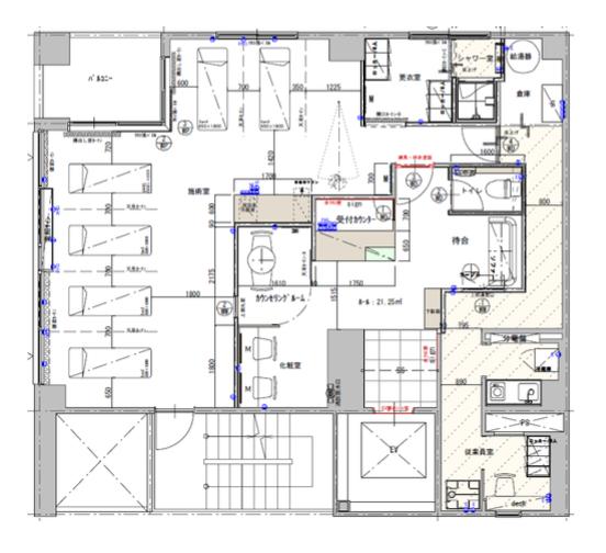
間取り

【賃料DOWN!!】四条烏丸徒歩1分、エステ居抜き区画

賃料: 57.2万円 専有面積:100.98㎡

物件名:四条ビヨンドビル(4F)

所在地:京都府京都市下京区四条通東洞院西入長刀鉾町

物件概要

阪急烏丸駅、地下鉄四条駅のいずれからも徒歩1分に位置する「四条ビヨンドビル」4階の店舗区画です。専有面積は約100.98m2(約30.6坪)で、エステサロンとして使用されていた居抜き物件となります。受付スペース、施術室、スタッフ動線を考慮したレイアウトが整っており、同業種であれば初期工事を抑えた出店計画も検討しやすい内容です。建物は鉄骨鉄筋コンクリート造で、築年は1996年。四条通と烏丸通の交差点至近という立地から、視認性やアクセス面にも優れています。造作譲渡代は不要とされており、引渡時期については相談となります。四条烏丸エリアで、即戦力となる居抜き区画をお探しの方に検討しやすい物件です。

物件番号 18150
物件名 四条ビヨンドビル(4F)
所在地 京都府京都市下京区四条通東洞院西入長刀鉾町
最寄駅/徒歩何分 阪急京都線 烏丸駅まで 徒歩1分
所在階 4階
賃料 57.2万円
保証金 7ヶ月
敷金・礼金 礼金 1ヶ月
専有面積 100.98㎡
建物構造 SRC(鉄骨鉄筋コンクリート)階
取引態様 仲介
最終更新日 2026/01/12 13:13

同じエリアの物件

この物件を見た人はこちらの物件も見ています

最近チェックした物件

  • リリィビル高倉(4F)