1. HOME
  2. 物件詳細

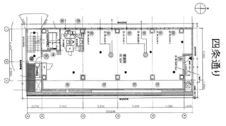
四条通面すオフィスビル7階、ワンフロア貸

賃料: 50.89万円 専有面積:152.92㎡

物件名:GRAND CUBE四条(7F)

所在地:京都府京都市下京区四条通高倉西入立売西町

間取り

四条通面すオフィスビル7階、ワンフロア貸

賃料: 50.89万円 専有面積:152.92㎡

物件名:GRAND CUBE四条(7F)

所在地:京都府京都市下京区四条通高倉西入立売西町

物件概要

四条通に面した視認性の高いオフィスビル「GRAND CUBE四条」の7階区画。阪急烏丸駅から徒歩約4分という利便性の高い立地です。専有面積は約46.26坪。ワンフロア1テナントで、男女別トイレや給湯室、個別空調、照明などの設備も整っており、快適な執務環境が整っています。内装は事務所仕様で引き渡し予定。なお、館内には歯科医院・美容室・エステサロンがすでに入居中のため、同業種での出店は不可となっております。管理費のほか、内装管理費が別途必要です。業種・契約条件などについてはお気軽にご相談ください。

物件番号 16940
物件名 GRAND CUBE四条(7F)
所在地 京都府京都市下京区四条通高倉西入立売西町
最寄駅/徒歩何分 阪急京都線 烏丸駅まで 徒歩4分
所在階 7階
賃料 50.89万円
敷金・礼金 敷金 10ヶ月
専有面積 152.92㎡
建物構造 鉄骨造階
取引態様 仲介
最終更新日 2025/07/31 11:17

同じエリアの物件

この物件を見た人はこちらの物件も見ています