1. HOME
  2. 物件詳細

西院・春日通面す1階約14坪貸店舗

賃料: 15.4万円 専有面積:47.00㎡

物件名:ウエストインコスモ(1F)

所在地:京都府京都市右京区西院西今田町

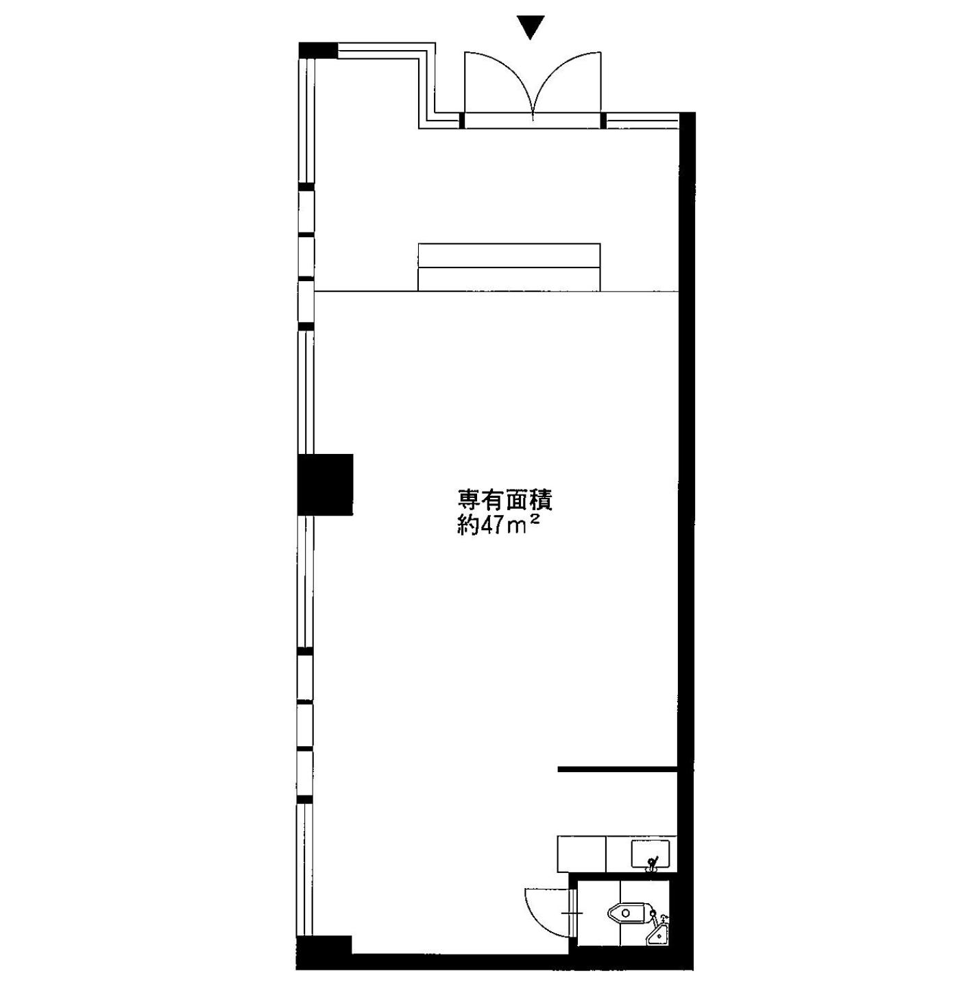
間取り

西院・春日通面す1階約14坪貸店舗

賃料: 15.4万円 専有面積:47.00㎡

物件名:ウエストインコスモ(1F)

所在地:京都府京都市右京区西院西今田町

物件概要

京都市右京区西院西今田町に位置する、1階部分の貸店舗・事務所区画です。建物はRC造4階建で、募集区画は1階。使用部分面積は約14.22坪で、内法計測による数値が示されています。春日通に面した立地にあり、通り沿いでの事業展開を想定しやすい区画です。賃料は月額15万4,000円で、消費税が含まれています。敷金は40万円、契約期間は3年、更新料は賃料1ヶ月分とされています。現況は空家で、入居は即時対応です。採光面は西向きで、都市ガス・上下水道が引き込まれています。トイレ、エアコン、キッチン、シャッターは貸主負担で修理交換が必要とされており、現状を踏まえた計画整理が前提となります。敷地内には駐車場の空きがあり、月額1万4,300円で利用可能です。京都でテナントや貸店舗を検討する中で、事務所利用を軸に、来店数を調整したサービス業や物販などを想定する場合、立地と規模のバランスを見ながら検討しやすい一件です。

物件番号 18562
物件名 ウエストインコスモ(1F)
所在地 京都府京都市右京区西院西今田町
最寄駅/徒歩何分 阪急京都線 西院駅まで 徒歩5分
所在階 1階
賃料 15.4万円
敷金・礼金 敷金 40万円
専有面積 47.00㎡
建物構造 RC(鉄筋コンクリート)階
取引態様 仲介
最終更新日 2026/02/07 08:18

同じエリアの物件

この物件を見た人はこちらの物件も見ています

最近チェックした物件

  • 京都錦HKビル(5F)
  • KAY'Zビル(201)
  • ワールドダック(602)