1. HOME
  2. 物件詳細

修学院エリア、地下区画で約46坪。使い方を工夫したい事業向け物件

賃料: 55万円 専有面積:154.44㎡

物件名:ウィングス92(B1F)

所在地:京都府京都市左京区一乗寺清水町

NEW

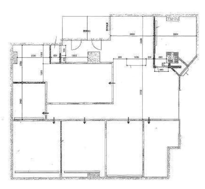
間取り

NEW

修学院エリア、地下区画で約46坪。使い方を工夫したい事業向け物件

賃料: 55万円 専有面積:154.44㎡

物件名:ウィングス92(B1F)

所在地:京都府京都市左京区一乗寺清水町

物件概要

叡山電鉄「修学院」駅から徒歩7分、修学院エリアに位置する地下区画のテナントです。現在は学習塾として使用中で、4月末まで営業予定となっており、その後の引渡しは相談となります。 専有面積は約154m2(約46坪)と、地下区画ながらしっかりとした広さが確保されています。区画内は複数の部屋に分かれており、教室用途や事務所利用、サービス系業態など、レイアウト次第で柔軟な使い方が考えられる構成です。 建物はRC造。共益費はなく、水道代は実費精算となります。長期利用を前提とした定期借家契約のため、腰を据えて拠点を構えたい方にも向いています。 人通りの多い路面立地ではありませんが、その分、落ち着いた環境で業務や教室運営を行いたい方には検討しやすい物件です。用途や改装内容については、事前に相談しながら進めていく形となります。

物件番号 18339
物件名 ウィングス92(B1F)
所在地 京都府京都市左京区一乗寺清水町
最寄駅/徒歩何分 叡山電鉄 修学院駅まで 徒歩7分
賃料 55万円
敷金・礼金 敷金 2ヶ月・礼金 2ヶ月
専有面積 154.44㎡
建物構造 RC(鉄筋コンクリート)階
取引態様 仲介
最終更新日 2026/01/16 18:35

同じエリアの物件

この物件を見た人はこちらの物件も見ています