1. HOME
  2. 物件詳細

五条通・堀川通に面する、29坪のオフィス区画

賃料: 17.6万円 専有面積:95.96㎡

物件名:五条堀川ビル(605)

所在地:京都府京都市下京区五条通堀川西入柿本町

NEW

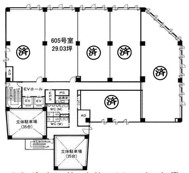
間取り

NEW

五条通・堀川通に面する、29坪のオフィス区画

賃料: 17.6万円 専有面積:95.96㎡

物件名:五条堀川ビル(605)

所在地:京都府京都市下京区五条通堀川西入柿本町

物件概要

五条通と堀川通が交わる幹線沿いに建つ、存在感のあるオフィスビル。 地下鉄「五条」駅から徒歩9分、JR「京都」駅へもバスでアクセスでき、移動のしやすさが特徴です。 募集区画は6階・約29.03坪。 ワンフロア構成のため、部署単位のオフィスや少人数〜中規模の拠点としても使いやすい広さです。 天井高は約2.4mあり、レイアウト次第で開放感のある空間づくりも可能です。 共用部にはエレベーター2基、男女別トイレを備え、 平日・土日祝の8時〜22時は空調費が共益費に含まれている点も、日常的な運用を考えると安心材料のひとつです。 また、敷地内には最大80台収容可能なタワーパーキングがあり、車利用の多い業務にも対応しやすい環境です。 賃料は160,000円、共益費117,000円、月額合計277,000円。 2026年3月末の入居予定となっており、移転や拠点整理を検討している方にとっては、スケジュールを立てやすい区画です。 立地の分かりやすさと、堅実なオフィス機能を重視する事業者にとって、現実的に検討しやすい一室。 五条エリアでオフィスを探している方には、一度条件を照らし合わせてみたい物件です。

物件番号 18174
物件名 五条堀川ビル(605)
所在地 京都府京都市下京区五条通堀川西入柿本町
最寄駅/徒歩何分 京都市営地下鉄烏丸線 五条駅まで 徒歩9分
所在階 6階
賃料 17.6万円
保証金 174万円
専有面積 95.96㎡
建物構造 SRC(鉄骨鉄筋コンクリート)階
取引態様 仲介
最終更新日 2025/12/19 10:02

同じエリアの物件

この物件を見た人はこちらの物件も見ています