1. HOME
  2. 物件詳細

千本今出川上る|物販・サービス向きの1階店舗

賃料: 9.9万円 専有面積:21.92㎡

物件名:CASA花車(1F)

所在地:京都府京都市上京区千本通寺之内下る花車町

NEW

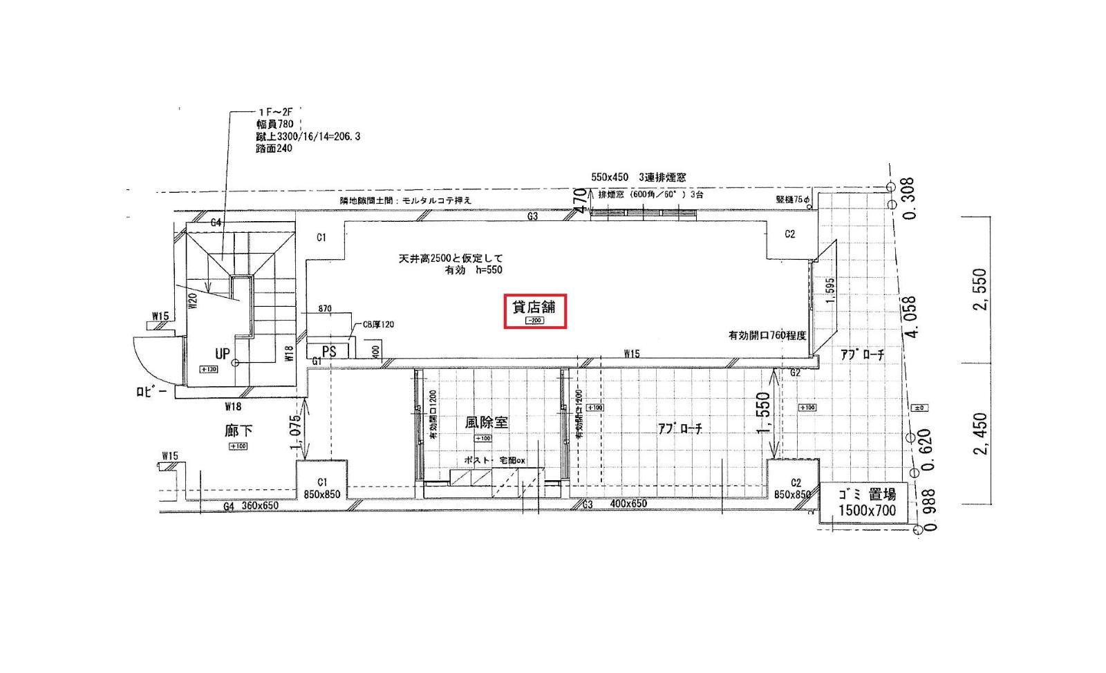
間取り

NEW

千本今出川上る|物販・サービス向きの1階店舗

賃料: 9.9万円 専有面積:21.92㎡

物件名:CASA花車(1F)

所在地:京都府京都市上京区千本通寺之内下る花車町

物件概要

上京区千本今出川上る、通りに面した1階店舗区画のご紹介です。建物は鉄筋コンクリート造6階建てで、2024年12月に増改築が行われたばかり。募集区画は1階部分、面積は約21.92m2(約6.63坪)とコンパクトながら、シンプルな形状で使い勝手のよい空間となっています。室内はスケルトンに近い状態で、業態に合わせて内装を整えやすい点も魅力です。 最寄りは地下鉄烏丸線「今出川」駅で徒歩圏内。さらに市バス「乾隆校前停留所」から徒歩約1分と、バス利用の来店にも対応しやすい立地です。千本通沿いという分かりやすいロケーションで、地域に根ざした店舗やサービス業の拠点として検討しやすい環境といえるでしょう。 物販や各種サービス店舗に適した区画で、小規模ながら路面に面した店舗をお探しの方におすすめの物件です。飲食用途での利用はできませんが、サロンや物販、予約制サービスなどの用途で検討しやすい区画となっています。

物件番号 18746
物件名 CASA花車(1F)
所在地 京都府京都市上京区千本通寺之内下る花車町
最寄駅/徒歩何分 京都市営地下鉄烏丸線 今出川駅まで 徒歩25分
所在階 1階
賃料 9.9万円
敷金・礼金 敷金 1ヶ月・礼金 1ヶ月
専有面積 21.92㎡
建物構造 RC(鉄筋コンクリート)階
取引態様 仲介
最終更新日 2026/04/02 17:19

同じエリアの物件

この物件を見た人はこちらの物件も見ています