1. HOME
  2. 物件詳細

上京区花車町・千本通沿い大型貸店舗

賃料: 176万円 専有面積:1466.00㎡

物件名:上京区花車町大型店舗

所在地:京都府京都市上京区花車町

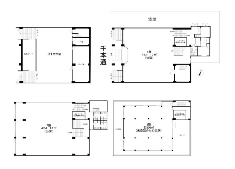
間取り

上京区花車町・千本通沿い大型貸店舗

賃料: 176万円 専有面積:1466.00㎡

物件名:上京区花車町大型店舗

所在地:京都府京都市上京区花車町

物件概要

京都市上京区花車町、千本通に面した大型の貸店舗・事務所です。RC造3階建で、地下1階から3階部分までを使用する構成となっており、建物使用部分面積は約443.46坪、土地面積は約231.02坪と、まとまった規模が確保されています。賃料は月額176万円(税込)、保証金は6ヶ月分。現況は空きで、引渡し時期は相談となっています。用途はオフィス、物販・サービス、美容・エステ、医療、商業施設などが想定されており、フロアごとの使い分けやゾーニングを前提とした計画を立てやすい条件です。駐車場が付帯している点も、規模のある事業計画を考える際の要素となります。京都でテナントや貸店舗を検討する中で、大型出店や拠点型の事業を想定する場合、京都 店舗デザインや店舗設計、店舗リノベーションを含めて、事業全体の組み立てを検討していきたい一件です。

物件番号 18500
物件名 上京区花車町大型店舗
所在地 京都府京都市上京区花車町
最寄駅/徒歩何分 京福電鉄北野線 北野白梅町駅まで 徒歩19分
所在階 1階
賃料 176万円
保証金 6ヶ月
専有面積 1466.00㎡
建物構造 RC(鉄筋コンクリート)階
取引態様 仲介
最終更新日 2026/02/03 13:21

同じエリアの物件

この物件を見た人はこちらの物件も見ています