1. HOME
  2. 物件詳細

九条通り沿い、住居付きで使える一棟貸し店舗

賃料: 31.5万円 専有面積:60.94㎡

物件名:西九条川原城町住居付店舗

所在地:京都府京都市南区西九条川原城町

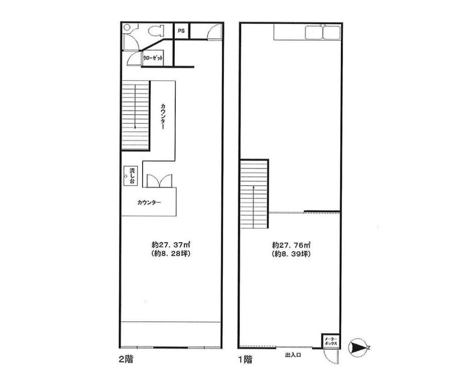
間取り

九条通り沿い、住居付きで使える一棟貸し店舗

賃料: 31.5万円 専有面積:60.94㎡

物件名:西九条川原城町住居付店舗

所在地:京都府京都市南区西九条川原城町

物件概要

南区・西九条川原城町に位置する、住居付きの一棟貸し店舗物件です。近鉄東寺駅から徒歩3分、九条通りに面した分かりやすい立地で、人や車の動きも感じられるエリアにあります。 建物は木造2階建、延床約60m2。1階は店舗区画として、2階は住居スペースとして使える構成になっており、店舗運営と生活を近くで完結させたい方に向いた物件です。業種は重飲食も相談可能となっており、使い方の幅が比較的広い点も特徴です。 内装はすでに整えられているため、初期の工事負担を抑えつつスタートしやすい印象があります。店舗と住居を分けて使うもよし、事務所兼住居として使うもよし。九条通り沿いで、コンパクトながら独立性のある一棟をお探しの方には、現実的な選択肢になりそうです。

物件番号 18279
物件名 西九条川原城町住居付店舗
所在地 京都府京都市南区西九条川原城町
最寄駅/徒歩何分 近鉄京都線 東寺駅まで 徒歩3分
所在階 1階
賃料 31.5万円
敷金・礼金 敷金 30万円・礼金 44万円
専有面積 60.94㎡
建物構造 木造階
取引態様 仲介
最終更新日 2026/01/08 14:17

同じエリアの物件

この物件を見た人はこちらの物件も見ています

最近チェックした物件

  • 四条高倉大西ビル7F
  • 恵美須屋町貸家