1. HOME
  2. 物件詳細

烏丸御池駅徒歩1分|明治安田生命京都ビル 9階 事務所(約121坪)

賃料: 214.35万円 専有面積:402.61㎡

物件名:明治安田生命京都ビル(9F)

所在地:京都府京都市中京区烏丸通御池上る二条殿町

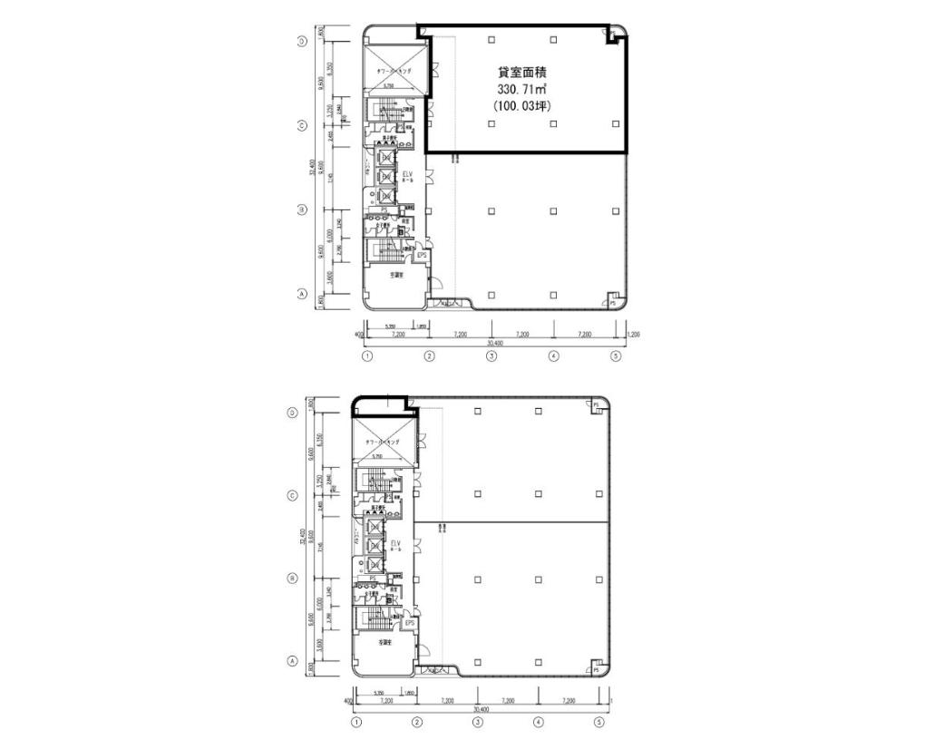
間取り

烏丸御池駅徒歩1分|明治安田生命京都ビル 9階 事務所(約121坪)

賃料: 214.35万円 専有面積:402.61㎡

物件名:明治安田生命京都ビル(9F)

所在地:京都府京都市中京区烏丸通御池上る二条殿町

物件概要

地下鉄烏丸線「烏丸御池」駅から徒歩1分。烏丸通沿いに建つ、視認性とアクセス性を兼ね備えたオフィスビルの一室です。京都市内の主要ビジネスエリアに位置し、来客対応や従業員の通勤動線を重視する事業所に適した立地といえます。 本物件は9階部分、専有面積約402.61m2(約121.79坪)のワンフロア仕様。柱の少ないレイアウトで、部署ごとのゾーニングやフリーアドレス、会議室設置など、事業規模や業態に応じた柔軟なプランニングが可能です。エレベーターは3基あり、24時間利用可能な点も業務形態の幅を広げてくれます。 建物はSRC造・地上9階建て(地下1階)で、機械警備や管理体制も整っています。事務所利用を前提とした募集となっており、落ち着いた環境の中で長期的な拠点を構えたい企業にも検討しやすい条件です。 契約条件や面積違いの区画については複数プランがあるため、詳細は用途やご希望条件に応じてご確認ください。烏丸御池エリアで規模感のあるオフィスをお探しの方に、一度検討していただきたい物件です。

物件番号 18441
物件名 明治安田生命京都ビル(9F)
所在地 京都府京都市中京区烏丸通御池上る二条殿町
最寄駅/徒歩何分 京都市営地下鉄烏丸線 烏丸御池駅まで 徒歩1分
所在階 9階
賃料 214.35万円
敷金・礼金 敷金 12ヶ月
専有面積 402.61㎡
建物構造 SRC(鉄骨鉄筋コンクリート)階
取引態様 仲介
最終更新日 2026/01/28 17:33

同じエリアの物件

この物件を見た人はこちらの物件も見ています

最近チェックした物件

  • 松竹町京町家
  • 紫竹下本町店舗
  • リアライズ花見小路ビル(2-A)