1. HOME
  2. 物件詳細

寺町通り沿い|京都市役所前駅徒歩1分の2階テナント

賃料: 541,838円 専有面積:74.01㎡

物件名:井筒屋ビル(2F)

所在地:京都府京都市中京区下本能寺前町

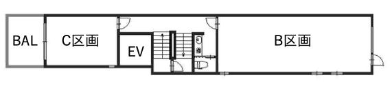
間取り

寺町通り沿い|京都市役所前駅徒歩1分の2階テナント

賃料: 541,838円 専有面積:74.01㎡

物件名:井筒屋ビル(2F)

所在地:京都府京都市中京区下本能寺前町

物件概要

京都市中京区・寺町通り沿いに位置する「井筒屋ビル」2階テナントです。地下鉄東西線「京都市役所前」駅から徒歩1分という好アクセス。専有面積は約74.01m2(約22.38坪)で、B区画・C区画のセット貸しとなっています。 窓面が広く自然光が入る明るい空間で、事務所のほか、サロンやスクールなどにも適したレイアウト。 周辺は寺町商店街に隣接し、京都らしい賑わいと利便性を兼ね備えたエリアです。来客動線も良く、上質なオフィスや店舗をお探しの方におすすめです。

物件番号 17707
物件名 井筒屋ビル(2F)
所在地 京都府京都市中京区下本能寺前町
最寄駅/徒歩何分 京都市営地下鉄東西線 京都市役所前駅まで 徒歩1分
所在階 2階
賃料 541,838円
保証金 6ヶ月
敷金・礼金 礼金 1ヶ月
専有面積 74.01㎡
建物構造 鉄骨造階
取引態様 仲介
最終更新日 2025/11/20 13:31

同じエリアの物件

この物件を見た人はこちらの物件も見ています

最近チェックした物件

  • 今新在家町西町テナント西側
  • ギャリエヤマシタ2号館(2F)
  • 京都銀行会館(3F-D)
  • 下鴨SECTION(2F)
  • サンヴォア京都(1F)