1. HOME
  2. 物件詳細

五条駅徒歩1分、1フロア1テナントのメゾネット区画

賃料: 33万円 専有面積:73.20㎡

物件名:MILLY烏丸五条(3.4F)

所在地:京都府京都市下京区烏丸通五条下る大坂町

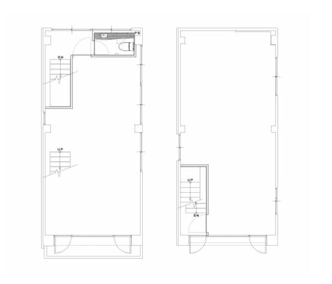
間取り

五条駅徒歩1分、1フロア1テナントのメゾネット区画

賃料: 33万円 専有面積:73.20㎡

物件名:MILLY烏丸五条(3.4F)

所在地:京都府京都市下京区烏丸通五条下る大坂町

物件概要

下京区烏丸通五条下る大坂町に位置する、地下鉄五条駅から徒歩1分の貸店舗区画です。烏丸通に近い立地で、地下鉄烏丸線を利用したアクセスがしやすく、周辺には事務所や店舗が並ぶエリアとなっています。 募集区画は、最上階・1フロア1テナント構成のメゾネットタイプ。 建物使用部分面積は約73.20m2で、上下階を一体で使えるため、用途に応じたゾーニングがしやすい構成です。24時間利用が可能で、土日・祝日の利用にも対応しています。 室内にはトイレ、オープンキッチンが設けられており、エアコンは2台以上設置済み。インターネットにも対応しているため、事務所利用のほか、来店頻度を調整しやすいサービス業や予約制の業態なども検討しやすい区画です。 建物はRC造5階建の3~4階部分、1964年9月築。 現況は居住中で、引渡しは2026年3月下旬予定となっています。 賃料は月額33万円、礼金・敷金はなく、保証金6ヶ月分が設定されています。 五条エリアで、 駅近立地を活かしつつ、1フロア専有の落ち着いた拠点を検討したい方にとって、 条件を整理しながら向き合いやすいメゾネット区画です。

物件番号 18220
物件名 MILLY烏丸五条(3.4F)
所在地 京都府京都市下京区烏丸通五条下る大坂町
最寄駅/徒歩何分 京都市営地下鉄烏丸線五条まで 徒歩1分
所在階 3階
賃料 33万円
保証金 6ヶ月
専有面積 73.20㎡
建物構造 RC(鉄筋コンクリート)階
取引態様 仲介
最終更新日 2025/12/23 13:31

同じエリアの物件

この物件を見た人はこちらの物件も見ています

最近チェックした物件

  • ノースヴィラ
  • 京都府京都市中京区壬生高樋町 店舗戸建
  • AL北白川アパートメント(1F)
  • ヴィラ夷川(1F)