1. HOME
  2. 物件詳細

丸太町駅徒歩6分・釜座通面す1階店舗|病院向かいの好立地

賃料: 41.8万円 専有面積:97.00㎡

物件名:GCビル(1F)

所在地:京都府京都市上京区西洞院通丸太町上る夷川町

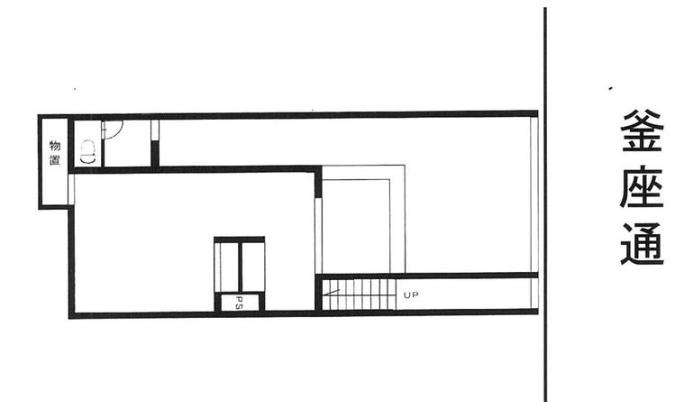
間取り

丸太町駅徒歩6分・釜座通面す1階店舗|病院向かいの好立地

賃料: 41.8万円 専有面積:97.00㎡

物件名:GCビル(1F)

所在地:京都府京都市上京区西洞院通丸太町上る夷川町

物件概要

京都市上京区、釜座通に面した「GCビル」1階部分の貸店舗です。地下鉄烏丸線「丸太町」駅から徒歩6分、第二赤十字病院の向かいに位置しています。専有面積は約97m2(約29.3坪)。賃料は41.8万円(税込)、保証金は300万円です。 建物は鉄骨造5階建の1階部分で、現況は営業中。11月末に退去予定となっています。周辺には医療機関やオフィスが多く、平日昼間の人通りも見込めるエリアです。 飲食店での利用も相談可能で、店舗やサービス業、ショールームなどにも適しています。

物件番号 17596
物件名 GCビル(1F)
所在地 京都府京都市上京区西洞院通丸太町上る夷川町
最寄駅/徒歩何分 京都市営地下鉄烏丸線 丸太町駅まで 徒歩6分
所在階 1階
賃料 41.8万円
保証金 300万円
専有面積 97.00㎡
建物構造 鉄骨造階
取引態様 仲介
最終更新日 2025/10/21 12:39

同じエリアの物件

この物件を見た人はこちらの物件も見ています

最近チェックした物件

  • ボヌール館2F
  • 岡染BASE KYOTO OMIYA A号室
  • 明治安田生命京都ビル(9F-北)
  • 田中町町家戸建