1. HOME
  2. 物件詳細

龍谷大前深草駅徒歩7分・小規模オフィスにおすすめの貸店舗・事務所

賃料: 4.18万円 専有面積:25.43㎡

物件名:第一ビル(402)

所在地:京都府京都市伏見区深草西浦町4丁目

NEW

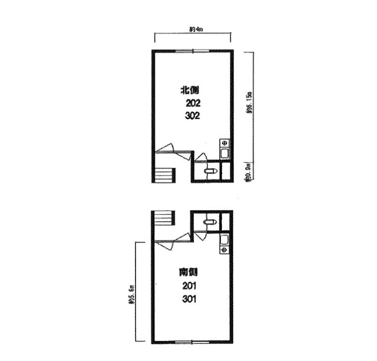
間取り

NEW

龍谷大前深草駅徒歩7分・小規模オフィスにおすすめの貸店舗・事務所

賃料: 4.18万円 専有面積:25.43㎡

物件名:第一ビル(402)

所在地:京都府京都市伏見区深草西浦町4丁目

物件概要

京阪本線「龍谷大前深草」駅から徒歩7分、バス停「龍谷大学前」からも徒歩3分の便利な立地に位置するテナントです。専有面積は25.43m2で、個人事務所や小規模なサロン、スクール運営などに適したサイズ感。 室内には専用トイレとエアコンを完備し、土日祝日の利用も可能です。角部屋につき、採光も確保されています。飲食店利用は不可ですが、静かな環境で落ち着いた業態にぴったりの空間です。 エアコンや給湯器は残置物扱いとなり、現状渡しでの引き渡し。初期費用を抑えて開業したい方にもおすすめの物件です。

物件番号 17429
物件名 第一ビル(402)
所在地 京都府京都市伏見区深草西浦町4丁目
最寄駅/徒歩何分 京阪本線 龍谷大前深草駅まで バス (龍谷大学前バス停まで徒歩7分)
所在階 4階
賃料 4.18万円
保証金 10万円
専有面積 25.43㎡
建物構造 鉄骨造階
取引態様 仲介
最終更新日 2026/04/21 14:21

同じエリアの物件

この物件を見た人はこちらの物件も見ています

最近チェックした物件

  • 三虎第三ビル(2F)