1. HOME
  2. 物件詳細

四条エリア徒歩3分のワンフロア貸店舗

賃料: 30.8万円 専有面積:52.36㎡

物件名:アイカーサ柳馬場(3F)

所在地:京都府京都市下京区永原町

NEW

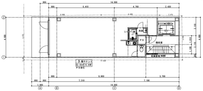
間取り

NEW

四条エリア徒歩3分のワンフロア貸店舗

賃料: 30.8万円 専有面積:52.36㎡

物件名:アイカーサ柳馬場(3F)

所在地:京都府京都市下京区永原町

物件概要

四条・河原町エリア、柳馬場通綾小路下ルに位置するテナントビルの一室です。阪急「烏丸」「京都河原町」、地下鉄「四条」駅から徒歩3分と、中心部へのアクセスがしやすい立地。対象は3階のワンフロア区画で、約52.36m2(約15.8坪)の広さとなっています。賃料は30.8万円、共益費は月額3万円。室内にはトイレや洗面室、シャワー室などが備えられており、用途に応じてレイアウトを検討しやすい状態です。周辺は店舗やオフィスが集まるエリアで、サービス店舗や事務所など、業態に合わせた使い方をイメージしやすい区画です。

物件番号 19041
物件名 アイカーサ柳馬場(3F)
所在地 京都府京都市下京区永原町
最寄駅/徒歩何分 京都市営地下鉄烏丸線 四条駅まで 徒歩3分
所在階 3階
賃料 30.8万円
敷金・礼金 敷金 18万円・礼金 110万円
専有面積 52.36㎡
建物構造 鉄骨造階
取引態様 仲介
最終更新日 2026/04/01 13:43

同じエリアの物件

この物件を見た人はこちらの物件も見ています