1. HOME
  2. 物件詳細

祇園エリア|観光地近くのコンパクトなテナント

賃料: 15.4万円 専有面積:26.10㎡

物件名:コミュニティ祇園ビル(4F)

所在地:京都府京都市東山区新門前通大和大路東入4丁目松原町

NEW

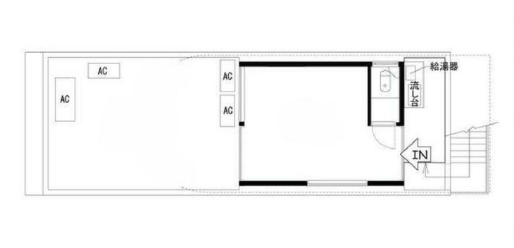
間取り

NEW

祇園エリア|観光地近くのコンパクトなテナント

賃料: 15.4万円 専有面積:26.10㎡

物件名:コミュニティ祇園ビル(4F)

所在地:京都府京都市東山区新門前通大和大路東入4丁目松原町

物件概要

祇園エリアに位置する「コミュニティ祇園ビル」4階区画のご紹介です。 京阪本線「祇園四条」駅から徒歩10分、地下鉄東西線「東山」駅から徒歩8分。さらに八坂神社や知恩院にも近く、京都でも屈指の観光エリアに位置しています。 専有面積は26.10m2とコンパクトなサイズ。家賃は154,000円、管理費は月額11,000円です。礼金・敷金はなく、保証金50万円での契約となります。建物は1982年築のRC造5階建で、今回の募集は4階部分。現在は空室で、即入居可能です。 室内にはトイレやオープンキッチン、収納スペースがあり、エアコンや都市ガスなどの設備も整っています。角部屋で採光も取りやすく、コンパクトながら使い勝手のよい空間です。 祇園という立地柄、観光客の往来も多く、事務所や小規模なサービス業、アトリエなどに向いた区画。京都らしい街並みを感じながら事業を行いたい方にも検討しやすい物件です。 祇園エリアで小さめの拠点をお探しの方は、ぜひご覧ください。

物件番号 18840
物件名 コミュニティ祇園ビル(4F)
所在地 京都府京都市東山区新門前通大和大路東入4丁目松原町
最寄駅/徒歩何分 徒歩1分
所在階 4階
賃料 15.4万円
管理費 11000円
保証金 50万円
専有面積 26.10㎡
建物構造 HPC(鉄骨プレキャストコンクリート)階
取引態様 仲介
最終更新日 2026/03/12 14:38

同じエリアの物件

この物件を見た人はこちらの物件も見ています