1. HOME
  2. 物件詳細

清水エリアの一棟貸し店舗|約576m2の大型物件

賃料: 220万円 専有面積:576.06㎡

物件名:清水4丁目店舗

所在地:京都府京都市東山区清水4丁目

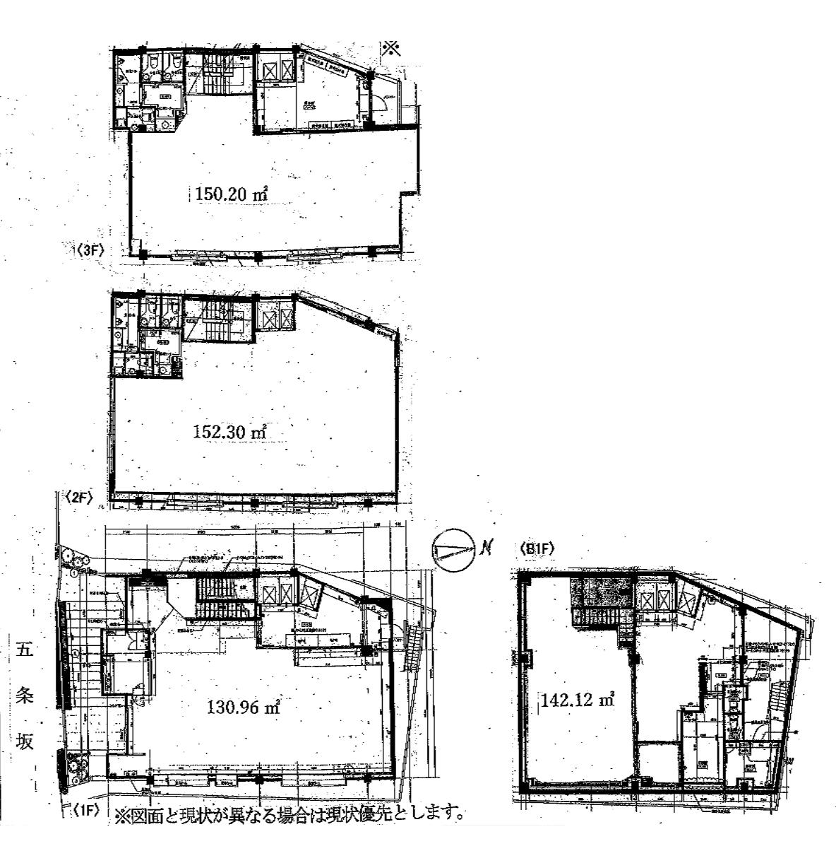
間取り

清水エリアの一棟貸し店舗|約576m2の大型物件

賃料: 220万円 専有面積:576.06㎡

物件名:清水4丁目店舗

所在地:京都府京都市東山区清水4丁目

物件概要

東山区清水4丁目に位置する一棟貸し店舗のご紹介です。京阪本線「清水五条」駅から徒歩約12分、清水寺へ向かう観光動線にも近い東山エリアにあります。周辺には観光客や参拝客が多く訪れる環境が広がり、京都らしい雰囲気を感じられる立地です。 建物は昭和57年4月築の鉄骨造、地上3階・地下1階建。延床面積は約576.06m2と、まとまった規模を持つ大型の店舗物件です。複数フロアを活かした店舗構成や、用途ごとに階を分けた運営など、さまざまな使い方が検討できます。 建物は東山区清水4丁目に位置し、周辺は歴史ある町並みが残るエリア。観光需要を背景に、京都らしい店舗づくりを考える方にも魅力のある環境です。広さを活かした店舗展開やブランド発信の拠点としてもご検討いただけます。 現況は入居中ですが、令和8年5月上旬より入居予定となっています。東山・清水エリアでまとまった規模の店舗をお探しの方は、ぜひご検討ください。

物件番号 18784
物件名 清水4丁目店舗
所在地 京都府京都市東山区清水4丁目
最寄駅/徒歩何分 京阪本線 清水五条駅まで 徒歩12分
所在階 1階
賃料 220万円
保証金 6ヶ月
専有面積 576.06㎡
建物構造 鉄骨造階
取引態様 仲介
最終更新日 2026/03/09 16:48

同じエリアの物件

この物件を見た人はこちらの物件も見ています