1. HOME
  2. 物件詳細

烏丸御池近く、利便性の高いオフィス区画(AOIビル4F)

賃料: 18.48万円 専有面積:48.40㎡

物件名:AOIビル(4F-403)

所在地:京都府京都市中京区蛸薬師通烏丸西入橋弁慶町

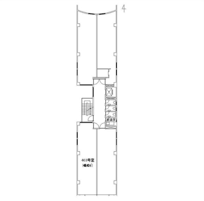
間取り

烏丸御池近く、利便性の高いオフィス区画(AOIビル4F)

賃料: 18.48万円 専有面積:48.40㎡

物件名:AOIビル(4F-403)

所在地:京都府京都市中京区蛸薬師通烏丸西入橋弁慶町

物件概要

烏丸御池駅から徒歩3分の位置にある「AOIビル」4階のオフィス区画です。四条エリアへも歩いてアクセスでき、京都中心部で事務所を構える際にちょうど良い立地です。専有面積は約48m2で、使いやすい長方形の空間となっています。 建物は鉄筋コンクリート造で、エレベーターや給湯室、共用トイレなど、日常的に必要な設備が整っています。室内はすっきりとしたレイアウトで、執務スペースとしても来客対応のワークスペースとしても活用しやすい形です。 周辺には飲食店や商業施設が多く、働く人にとっても便利な環境がそろっています。現在空室につき、内覧のご相談も可能です。京都中心部で事務所をお探しの方におすすめの区画です。

物件番号 17928
物件名 AOIビル(4F-403)
所在地 京都府京都市中京区蛸薬師通烏丸西入橋弁慶町
最寄駅/徒歩何分 京都市営地下鉄烏丸線 四条駅まで 徒歩5分
所在階 4階
賃料 18.48万円
敷金・礼金 敷金 8ヶ月
専有面積 48.40㎡
建物構造 RC(鉄筋コンクリート)階
取引態様 仲介
最終更新日 2025/11/20 11:04

同じエリアの物件

この物件を見た人はこちらの物件も見ています