1. HOME
  2. 物件詳細

四条通に面したハイグレードオフィス/京都フコク生命四条柳馬場ビル 3階

賃料: 98.05万円 専有面積:147.33㎡

物件名:京都フコク生命四条柳馬場ビル(3F)

所在地:京都府京都市下京区四条通麩屋町西入立売東町

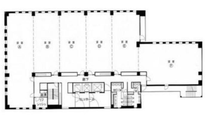
間取り

四条通に面したハイグレードオフィス/京都フコク生命四条柳馬場ビル 3階

賃料: 98.05万円 専有面積:147.33㎡

物件名:京都フコク生命四条柳馬場ビル(3F)

所在地:京都府京都市下京区四条通麩屋町西入立売東町

物件概要

四条通に面し、京都の中心地である河原町・烏丸エリアの利便性を享受できる「京都フコク生命四条柳馬場ビル」。 阪急「河原町」駅から徒歩3分、地下鉄「四条」駅から徒歩5分という好立地に位置しています。 ご紹介する3階区画は、44.57坪(約147.33m2)のゆとりあるオフィススペース。 天井高2,700mmの開放的な空間に、OAフロア(100mm)、個別空調、男女別トイレを備え、快適で機能的なオフィス環境を実現。 機械警備と有人警備の併用により、セキュリティも万全です。 24時間利用が可能で、ビルエントランスは平日・土日祝ともに8:00〜18:00まで開放。 京都の主要ビジネス街で、企業のブランド価値を高める拠点としておすすめの一室です。

物件番号 17422
物件名 京都フコク生命四条柳馬場ビル(3F)
所在地 京都府京都市下京区四条通麩屋町西入立売東町
最寄駅/徒歩何分 阪急京都線 京都河原町駅まで 徒歩3分
所在階 3階
賃料 98.05万円
敷金・礼金 敷金 12ヶ月
専有面積 147.33㎡
建物構造 鉄骨造階
取引態様 仲介
最終更新日 2025/10/05 16:49

同じエリアの物件

この物件を見た人はこちらの物件も見ています

最近チェックした物件

  • 英守ビル(207)
  • みすやビル(3.4F)
  • 烏丸松原ビル(3F)
  • 松井ビル(1F)