1. HOME
  2. 物件詳細

堀川松原エリア・ガレージ付き貸家|軽飲食相談可の木造二階建

賃料: 16.5万円 専有面積:88.37㎡

物件名:堀川松原貸家

所在地:京都府京都市下京区来迎堂町

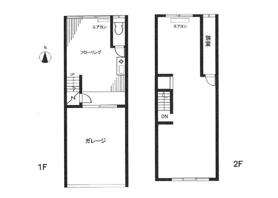
間取り

堀川松原エリア・ガレージ付き貸家|軽飲食相談可の木造二階建

賃料: 16.5万円 専有面積:88.37㎡

物件名:堀川松原貸家

所在地:京都府京都市下京区来迎堂町

物件概要

京都市下京区松原通堀川西入にある木造二階建の貸家です。市バス「堀川松原」停から徒歩約3分、地下鉄烏丸線「五条」駅やJR「丹波口」駅からも徒歩圏内。交通アクセスの良い立地にあります。 1階はガレージと水回り、2階は居室スペースとなっており、専有面積は1階約45.17m2・2階約43.20m2。駐車場1台分が確保されています。 エアコンやミニ冷蔵庫、IHコンロなどは残置物として利用可能。軽飲食業態についてもご相談いただけます。 契約は3年の定期借家契約で、再契約もご相談可能です。賃料は15万円(税別)、保証金は賃料の3ヶ月分。現況優先でのご案内となります。

物件番号 17604
物件名 堀川松原貸家
所在地 京都府京都市下京区来迎堂町
最寄駅/徒歩何分 阪急京都線 大宮駅まで 徒歩8分
所在階 1階
賃料 16.5万円
保証金 3ヶ月
専有面積 88.37㎡
建物構造 木造階
取引態様 仲介
最終更新日 2025/10/22 10:25

同じエリアの物件

この物件を見た人はこちらの物件も見ています

最近チェックした物件

  • 五条堀川ビル(501号室)
  • 竹田駅前第一ビル(501号室)
  • ケイアイ興産京都ビル(7F)
  • 壬生松原町ビル(201)
  • 備前島町テナント
  • 中堂寺坊城町テナント
  • ハイレックスビル(7F-A)