1. HOME
  2. 物件詳細

伏見区・藤森駅徒歩2分の店舗付き戸建て

賃料: 12万円 専有面積:100.79㎡

物件名:深草直違橋店舗付住宅

所在地:京都府京都市伏見区深草直違橋3丁目

NEW

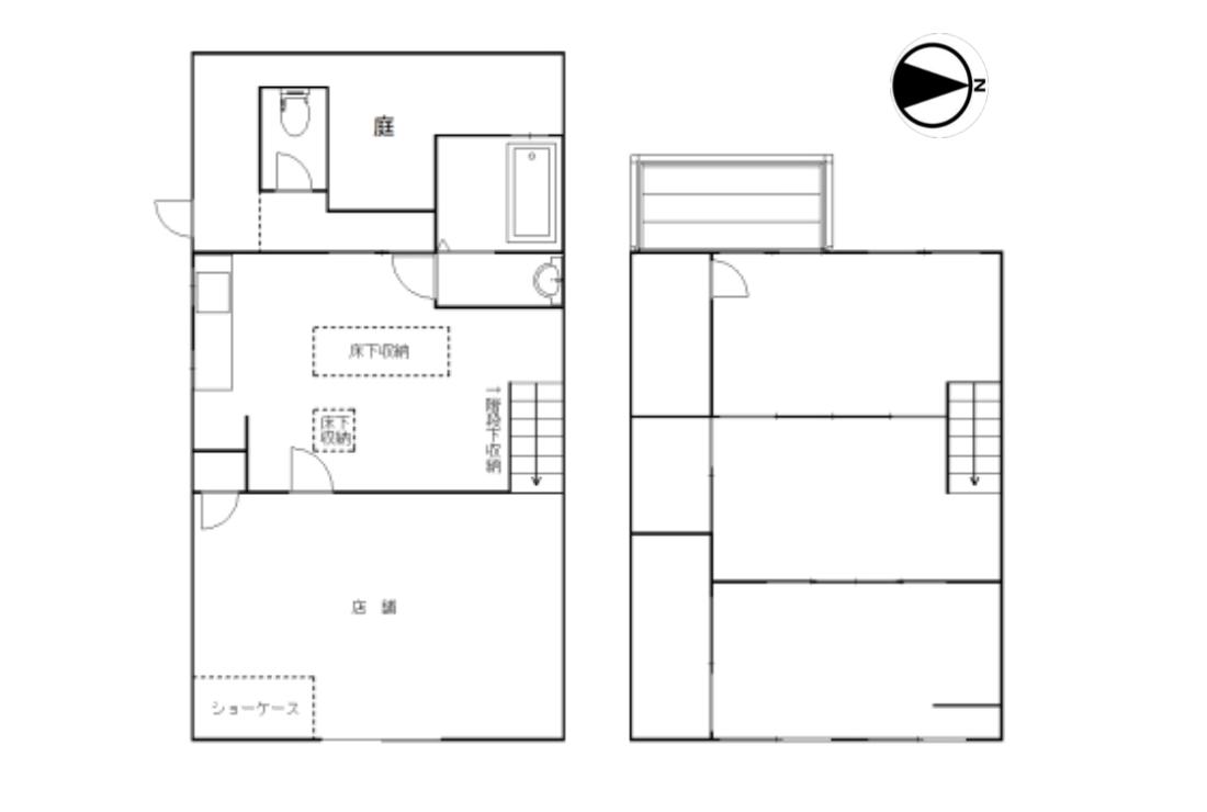
間取り

NEW

伏見区・藤森駅徒歩2分の店舗付き戸建て

賃料: 12万円 専有面積:100.79㎡

物件名:深草直違橋店舗付住宅

所在地:京都府京都市伏見区深草直違橋3丁目

物件概要

京阪「藤森」駅から徒歩2分に位置する、伏見区の店舗付き戸建物件です。専有面積は100.79m2、2階建ての木造建物で、DIY可能な点が大きな特徴です。現状での引渡しとなり、修繕については借主側で対応いただく形となりますが、その分自由度が高く、自分好みに改装して店舗兼住居として活用できます。 周辺は住宅と商店が混在する地域で、駅からの近さを活かした集客が期待できます。居住と店舗を兼ねたい方や、自分の手で空間を作り上げたい方におすすめの物件です。

物件番号 17245
物件名 深草直違橋店舗付住宅
所在地 京都府京都市伏見区深草直違橋3丁目
最寄駅/徒歩何分 京阪本線 藤森駅まで 徒歩2分
所在階 1階
賃料 12万円
敷金・礼金 礼金 1ヶ月
専有面積 100.79㎡
建物構造 木造階
取引態様 仲介
最終更新日 2026/04/17 17:42

同じエリアの物件

この物件を見た人はこちらの物件も見ています