1. HOME
  2. 物件詳細

京都駅徒歩4分の約27坪オフィス区画

賃料: 55万円 専有面積:91.25㎡

物件名:京都駅前第7ビル(7.8各階)

所在地:京都府京都市下京区材木町

NEW

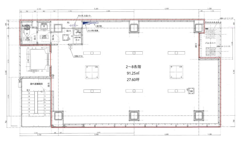
間取り

NEW

京都駅徒歩4分の約27坪オフィス区画

賃料: 55万円 専有面積:91.25㎡

物件名:京都駅前第7ビル(7.8各階)

所在地:京都府京都市下京区材木町

物件概要

下京区東洞院通七条東入エリア、七条通に面したオフィスビルの7・8階区画です。JR京都駅から徒歩4分と、交通利便性の高い立地。鉄骨造8階建の上層階部分で、専有面積は約91.25m2(約27.6坪)。賃料は55万円、共益費は55,000円となっています。2021年築の建物で、設備面も整った事務所仕様の区画。エレベーターも設置されており、日常の利用もしやすい環境です。駅近の立地を活かしながら、営業拠点やオフィスとして検討しやすい物件です。

物件番号 19205
物件名 京都駅前第7ビル(7.8各階)
所在地 京都府京都市下京区材木町
最寄駅/徒歩何分 京都市営地下鉄烏丸線 京都駅まで 徒歩4分
所在階 7階
賃料 55万円
保証金 6ヶ月
敷金・礼金 礼金 1ヶ月
専有面積 91.25㎡
建物構造 鉄骨造階
取引態様 仲介
最終更新日 2026/04/23 15:23

同じエリアの物件

この物件を見た人はこちらの物件も見ています

最近チェックした物件

  • 西野山射庭ノ上町テナント
  • 射庭ノ上町店舗A 2F
  • 新三虎ビル(3F-B1)