1. HOME
  2. 物件詳細

五条駅徒歩2分のオフィステナント|三善ビル2階

賃料: 19.84万円 専有面積:49.60㎡

物件名:三善ビル(2F-中)

所在地:京都府京都市下京区大坂町

NEW

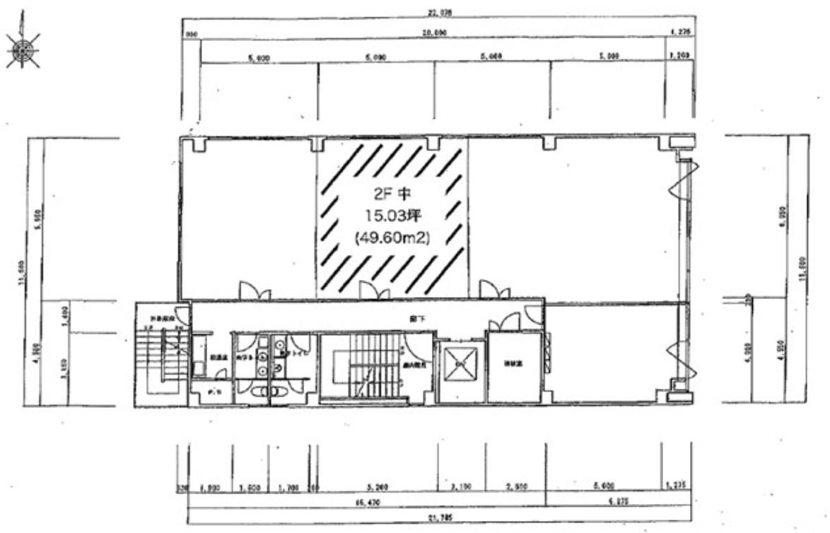
間取り

NEW

五条駅徒歩2分のオフィステナント|三善ビル2階

賃料: 19.84万円 専有面積:49.60㎡

物件名:三善ビル(2F-中)

所在地:京都府京都市下京区大坂町

物件概要

地下鉄烏丸線「五条駅」徒歩2分。8番出口とつながる利便性の高い立地にある三善ビル2階テナントのご紹介です。京都中心部へのアクセスも良く、来客の多い事務所にも適したロケーションです。 募集区画は49.6m2(約15坪)。コンパクトながらもレイアウトのしやすい広さで、少人数オフィスやスタートアップの拠点、ワークスペースとしても活用しやすい区画です。建物は鉄骨鉄筋コンクリート造(SRC造)地上8階・地下1階建、1980年3月築。館内にはエレベーター、トイレ、空調設備が備えられています。 賃料は月額198,396円(税込)、共益費は月額49,599円(税込)。契約は普通賃貸借契約5年、保証金は賃料の12ヶ月分となります。現況は賃貸中ですが、引渡し時期は相談可能です。 駅近でコンパクトな事務所をお探しの方におすすめの物件です。

物件番号 18849
物件名 三善ビル(2F-中)
所在地 京都府京都市下京区大坂町
最寄駅/徒歩何分 京都市営地下鉄烏丸線 五条駅まで 徒歩2分
所在階 2階
賃料 19.84万円
保証金 12ヶ月
専有面積 49.60㎡
建物構造 RC(鉄筋コンクリート)階
取引態様 仲介
最終更新日 2026/03/13 16:11

同じエリアの物件

この物件を見た人はこちらの物件も見ています

最近チェックした物件

  • 三善ビル(5F-東)