1. HOME
  2. 物件詳細

紫野・鞍馬口通の店舗付戸建

賃料: 20万円 専有面積:86.35㎡

物件名:紫野西藤ノ森町店舗付住宅

所在地:京都府京都市北区紫野西藤ノ森町

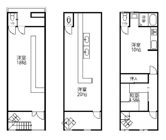
間取り

紫野・鞍馬口通の店舗付戸建

賃料: 20万円 専有面積:86.35㎡

物件名:紫野西藤ノ森町店舗付住宅

所在地:京都府京都市北区紫野西藤ノ森町

物件概要

京都市北区紫野西藤ノ森町、鞍馬口通に面する店舗付き戸建のご紹介です。市営地下鉄烏丸線「鞍馬口」駅より徒歩17分。落ち着いた住宅地の中にありながら、通りに面した視認性のある立地です。 建物使用部分面積は86.35m2。地上3階建の戸建で、1階が店舗スペース、2階・3階が居住・多用途スペースとしてお使いいただける構成です。店舗部分は約18帖、上階には洋室20帖・洋室10帖・和室4.5帖など、用途に応じて柔軟に使い分けが可能です。 賃料は月額20万円。礼金1ヶ月、敷金1ヶ月。現況空室で、引渡しは相談となります。 1986年5月築、駐車場はございません。 設備はトイレ専用、湯沸器あり。事務所利用可、IT重説対応。飲食店も可能(居抜き含め業種はご相談)とされており、物販・サロン・教室・事務所兼住居など、住まいと仕事を両立させたい方に適した物件です。 1階は現状有姿でのお引渡しとなります。 住まいと店舗を一体で構えたい方、路面での出店を検討中の方は、ぜひ一度ご相談ください。

物件番号 18648
物件名 紫野西藤ノ森町店舗付住宅
所在地 京都府京都市北区紫野西藤ノ森町
最寄駅/徒歩何分 京都市営地下鉄烏丸線 鞍馬口駅まで 徒歩17分
所在階 1階
賃料 20万円
敷金・礼金 敷金 1ヶ月・礼金 1ヶ月
専有面積 86.35㎡
建物構造 鉄骨造階
取引態様 仲介
最終更新日 2026/02/20 13:13

同じエリアの物件

この物件を見た人はこちらの物件も見ています