1. HOME
  2. 物件詳細

西院駅徒歩圏、最上階ワンルームの貸事務所区画

賃料: 11万円 専有面積:51.55㎡

物件名:ハイツミルトス(301)

所在地:京都市中京区壬⽣淵⽥町

NEW

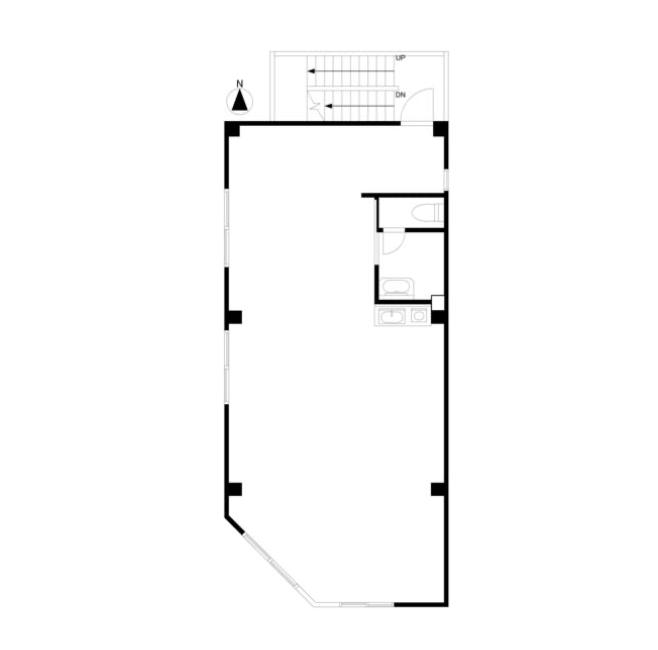
間取り

NEW

西院駅徒歩圏、最上階ワンルームの貸事務所区画

賃料: 11万円 専有面積:51.55㎡

物件名:ハイツミルトス(301)

所在地:京都市中京区壬⽣淵⽥町

物件概要

阪急京都線「西院」駅から徒歩4分。中京区壬生淵田町に位置する、3階建て最上階の貸事務所区画です。駅からのアクセスが良く、日常の通勤や来客対応もしやすい立地にあります。 専有面積は約51.55m2。ワンルームタイプのため、レイアウトの自由度が高く、事務所としての使い方に合わせた空間づくりが可能です。専有部分内にトイレが設けられており、エアコンも備えられています。 角部屋かつ最上階に位置しているため、周囲の音が気になりにくい点も特徴のひとつです。敷地内には無料の駐輪場があり、自転車通勤を検討されている方にも対応できます。 飲食店での利用は不可となりますが、少人数のオフィスや個人事業の拠点、サテライトオフィスなど、落ち着いた環境で業務を行いたい方に向いた区画です。即時入居が可能なため、タイミングを重視される方にも検討しやすい条件となっています。

物件番号 18395
物件名 ハイツミルトス(301)
所在地 京都市中京区壬⽣淵⽥町
最寄駅/徒歩何分 阪急京都線 西院駅まで 徒歩4分
所在階 3階
賃料 11万円
共益費 1 万円
敷金・礼金 敷金 3ヶ月・礼金 1ヶ月
専有面積 51.55㎡
建物構造 鉄骨造階
取引態様 仲介
最終更新日 2026/01/22 11:02

同じエリアの物件

この物件を見た人はこちらの物件も見ています