- HOME
- 物件詳細
物件詳細
【賃料DOWN!!】烏丸通面す・約393m2のワンフロア区画(インターワンプレス烏丸 5F)
賃料: 176.64万円 専有面積:393.25㎡
物件名:インターワンプレイス烏丸(5F)
所在地:京都府京都市中京区七観音町
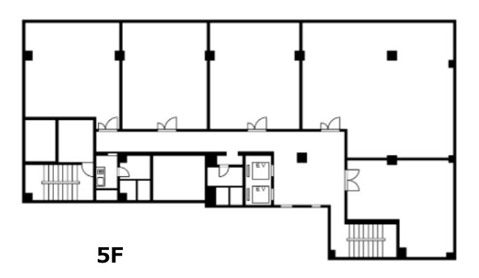
間取り
【賃料DOWN!!】烏丸通面す・約393m2のワンフロア区画(インターワンプレス烏丸 5F)
賃料: 176.64万円 専有面積:393.25㎡
物件名:インターワンプレイス烏丸(5F)
所在地:京都府京都市中京区七観音町
物件概要
阪急「烏丸」駅、地下鉄「四条」駅から徒歩4分。烏丸通に面したビル5階、約393.25m2の広さを持つワンフロア区画です。視認性が高く、ワークスペースをゆったり確保できる面積が特徴です。個別空調や照明、エレベーターなど、事務所利用に必要な設備が整っています。 建物は地上7階・地下1階建で、エントランスは7:30〜22:00まで利用可能です。時間外はセキュリティカードによる入退館に対応しています。周辺には店舗やオフィスが集まり、利便性の高いエリアです。事務所としての利用を中心に幅広い検討が可能な区画です。
| 物件番号 | 18031 |
|---|---|
| 物件名 | インターワンプレイス烏丸(5F) |
| 所在地 | 京都府京都市中京区七観音町 |
| 最寄駅/徒歩何分 | 阪急京都線 烏丸駅まで 徒歩4分 |
| 所在階 | 5階 |
| 賃料 | 176.64万円 |
| 管理費 | 327113円 |
| 敷金・礼金 | 敷金 10ヶ月 |
| 専有面積 | 393.25㎡ |
| 建物構造 | SRC(鉄骨鉄筋コンクリート)階 |
| 取引態様 | 仲介 |
| 最終更新日 | 2026/04/04 09:18 |