1. HOME
  2. 物件詳細

北大路通りに面した2階テナントのご紹介

賃料: 14万円 専有面積:38.53㎡

物件名:堀口大学堂ビル(2F)

所在地:京都府京都市北区小山上総町

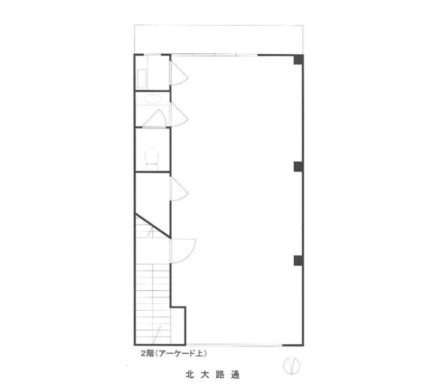
間取り

北大路通りに面した2階テナントのご紹介

賃料: 14万円 専有面積:38.53㎡

物件名:堀口大学堂ビル(2F)

所在地:京都府京都市北区小山上総町

物件概要

北大路駅から徒歩2分ほどの場所にある、北大路通りに面した2階テナントです。面積は約18.9坪で、事務所や教室、ネイルサロンなどの用途に向いています。イオンモール北大路の向かいに位置し、周辺の人通りも一定数見込める環境です。 室内はスケルトンに近い状態のため、業態に合わせた店舗デザインや店舗設計、店舗リノベーションがしやすく、京都でこれからお店づくりを検討されている方にとってレイアウトを考えやすい点が特徴です。内装工事は自由に計画いただけますので、希望に合わせた空間づくりも可能です。 設備としてエアコンはなく、水道の検針費用が事務所用で月額2千円となっています。契約期間は3年で、更新時には更新料が必要です。京都で貸店舗やテナントをお探しの方に、ぜひ一度ご覧いただきたい物件です。

物件番号 17907
物件名 堀口大学堂ビル(2F)
所在地 京都府京都市北区小山上総町
最寄駅/徒歩何分 京都市営地下鉄烏丸線 北大路駅まで 徒歩4分
所在階 2階
賃料 14万円
保証金 42万円
専有面積 38.53㎡
建物構造 鉄骨造階
取引態様 仲介
最終更新日 2025/11/16 09:33

同じエリアの物件

この物件を見た人はこちらの物件も見ています

最近チェックした物件

  • 小山上総町テナント(1F)
  • 小山上総町テナント(2F)
  • 熊野ビル(2F)
  • 小山上総町テナント(5F)