1. HOME
  2. 物件詳細

阪急大宮駅徒歩1分|大通りからすぐの地下1階・約610m2の大型区画

賃料: 165万円 専有面積:610.81㎡

物件名:大宮ジンビル(B1F)

所在地:京都府京都市中京区四条通大宮西入錦大宮町

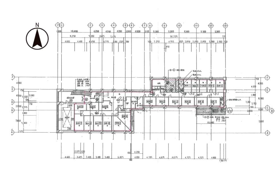
間取り

阪急大宮駅徒歩1分|大通りからすぐの地下1階・約610m2の大型区画

賃料: 165万円 専有面積:610.81㎡

物件名:大宮ジンビル(B1F)

所在地:京都府京都市中京区四条通大宮西入錦大宮町

物件概要

阪急「大宮」駅から徒歩1分。四条大宮交差点近くに建つ、大宮ジンビルの地下1階区画です。建物はS・RC造の地上4階建で、地下に広い専有部分が設けられています。 専有面積は610.81m2(約184.77坪)。ワンフロアをまとめて利用できる規模で、広さをいかしたレイアウトが可能です。現在は退去後の状態で、引渡条件については相談が可能となっています。 周辺は四条通と大宮通が交わるエリアで、交通量が多く、人通りも安定しています。駅からの距離が短く、地上からの導線も分かりやすい立地です。 契約は定期借家10年。保証会社の加入が必要となります。業種については相談可能ですので、大型区画をお探しの方におすすめの物件です。

物件番号 17829
物件名 大宮ジンビル(B1F)
所在地 京都府京都市中京区四条通大宮西入錦大宮町
最寄駅/徒歩何分 阪急京都線 大宮駅まで 徒歩1分
賃料 165万円
保証金 900万円
専有面積 610.81㎡
建物構造 RC(鉄筋コンクリート)階
取引態様 仲介
最終更新日 2025/11/14 15:27

同じエリアの物件

この物件を見た人はこちらの物件も見ています

最近チェックした物件

  • 洛西センタービル(503)
  • ウインズビル(3F)