- HOME
- 物件詳細
物件詳細
四条烏丸すぐ|綾小路通沿いのダブルルーム+キッチン空間
賃料: 19.8万円 専有面積:35.40㎡
物件名:綾小路ビルヂング四条烏丸(2F-205)
所在地:京都府京都市下京区綾小路通新町東入四条町
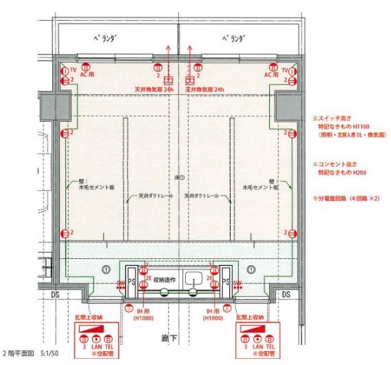
間取り
NEW
四条烏丸すぐ|綾小路通沿いのダブルルーム+キッチン空間
賃料: 19.8万円 専有面積:35.40㎡
物件名:綾小路ビルヂング四条烏丸(2F-205)
所在地:京都府京都市下京区綾小路通新町東入四条町
物件概要
阪急「烏丸」駅、地下鉄「四条」駅から徒歩4分。 京都の中心エリア・綾小路通沿いに位置する「綾小路ビルディング四条烏丸」2階テナントのご紹介です。 約35m2の室内は、2025年6月に大規模改修工事が完了予定。 シンプルで使いやすい間取りに加え、専用キッチンとトイレを備えた空間です。 事務所やアトリエ、予約制のサロンなど、幅広い用途に対応できます。 また、館内には入居者が利用できる共用設備として 4階に会議室(ラウンジオフィス)、ZOOMブースも設置予定。 利便性と快適性を両立した、都心型のワークプレイスです。 ※飲食店不可 ※保証会社・火災保険加入要 ※2025年8月以降入居可能予定
| 物件番号 | 17761 |
|---|---|
| 物件名 | 綾小路ビルヂング四条烏丸(2F-205) |
| 所在地 | 京都府京都市下京区綾小路通新町東入四条町 |
| 最寄駅/徒歩何分 | 阪急京都線 烏丸駅まで 徒歩4分 |
| 所在階 | 2階 |
| 賃料 | 19.8万円 |
| 保証金 | 4ヶ月 |
| 敷金・礼金 | 礼金 1ヶ月 |
| 専有面積 | 35.40㎡ |
| 建物構造 | RC(鉄筋コンクリート)階 |
| 取引態様 | 仲介 |
| 最終更新日 | 2025/11/06 10:31 |