1. HOME
  2. 物件詳細

四条烏丸徒歩4分のコンパクトオフィス区画

賃料: 17.6万円 専有面積:29.02㎡

物件名:綾小路ビルヂング烏丸四条(403)

所在地:京都府京都市下京区綾小路通新町東入四条町

NEW

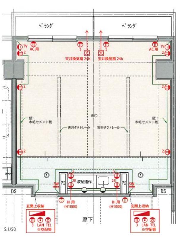
間取り

NEW

四条烏丸徒歩4分のコンパクトオフィス区画

賃料: 17.6万円 専有面積:29.02㎡

物件名:綾小路ビルヂング烏丸四条(403)

所在地:京都府京都市下京区綾小路通新町東入四条町

物件概要

下京区綾小路通新町東入、四条烏丸エリアに位置する4階区画です。阪急烏丸駅・地下鉄四条駅からともに徒歩4分と、中心部へのアクセスがしやすい立地。鉄筋コンクリート造4階建の4階部分で、専有面積は約29.02m2(約8.7坪)とコンパクトなサイズ感です。賃料は16万円、共益費は月額2万円。居抜きでの引き渡しとなっており、室内にはキッチンなどの設備が残るため、用途に応じて活用を検討しやすい条件です。小規模なオフィスや作業スペースとして、立地とサイズのバランスを重視した使い方をイメージしやすい区画です。

物件番号 19201
物件名 綾小路ビルヂング烏丸四条(403)
所在地 京都府京都市下京区綾小路通新町東入四条町
最寄駅/徒歩何分 京都市営地下鉄烏丸線 四条駅まで 徒歩4分
所在階 4階
賃料 17.6万円
共益費 2 万円
専有面積 29.02㎡
建物構造 RC(鉄筋コンクリート)階
取引態様 仲介
最終更新日 2026/04/23 16:08

同じエリアの物件

この物件を見た人はこちらの物件も見ています