1. HOME
  2. 物件詳細

夷川通沿いの一棟貸店舗

賃料: 50万円 専有面積:0.00㎡

物件名:泉町店舗

所在地:京都府京都市中京区夷川通新町東入泉町

NEW

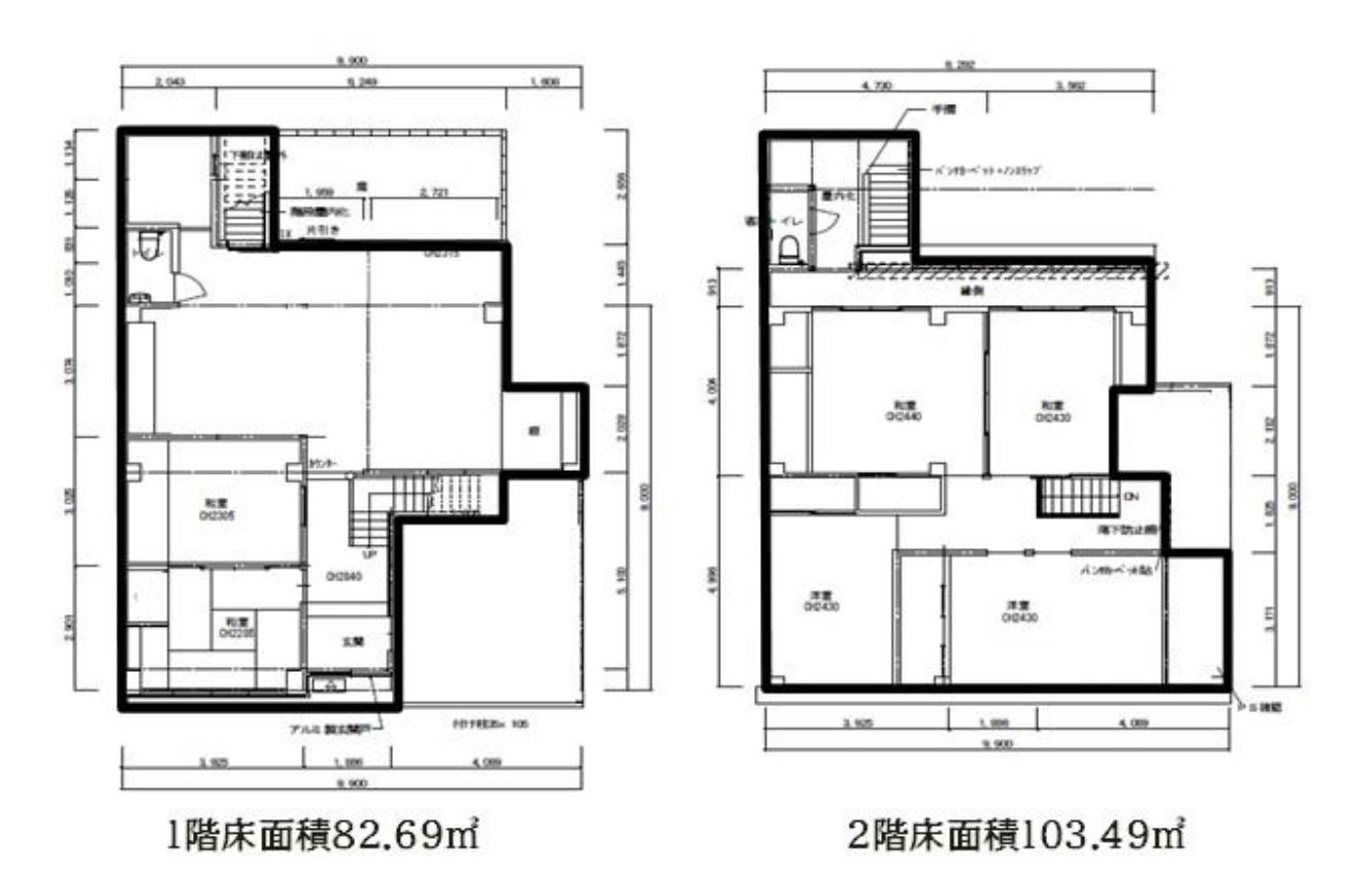
間取り

NEW

夷川通沿いの一棟貸店舗

賃料: 50万円 専有面積:0.00㎡

物件名:泉町店舗

所在地:京都府京都市中京区夷川通新町東入泉町

物件概要

京都市中京区夷川通新町東入泉町に位置する京都 テナント・貸店舗。地下鉄烏丸線「丸太町」駅から徒歩4分、「烏丸御池」駅からも徒歩圏の場所にある一棟貸しの建物です。面積は1階82.69m2、2階103.49m2で、合計約186.18m2(約56坪)の規模。鉄筋コンクリート造3階建のうち1・2階部分の募集となります。賃料は500,000円(税別)、保証金は賃料3か月分。契約は2年とされています。現況は空きで、入居は2026年5月上旬予定です。約50坪を超える広さがあり、フロアごとに用途を分けながら事業を組み立てやすい構成です。通りに面した立地を活かしつつ、事業内容に応じた使い方を検討しやすい貸店舗です。

物件番号 19024
物件名 泉町店舗
所在地 京都府京都市中京区夷川通新町東入泉町
最寄駅/徒歩何分 京都市営地下鉄烏丸線 丸太町駅まで 徒歩4分
所在階 1階
賃料 50万円
保証金 3ヶ月
専有面積 0.00㎡
建物構造 RC(鉄筋コンクリート)階
取引態様 仲介
最終更新日 2026/03/30 14:26

同じエリアの物件

この物件を見た人はこちらの物件も見ています