1. HOME
  2. 物件詳細

新町通・竹屋町通に面す1階テナント

賃料: 17.6万円 専有面積:25.98㎡

物件名:新町竹屋ビル(1F-西)

所在地:京都府京都市中京区新町通竹屋町下る弁財天町

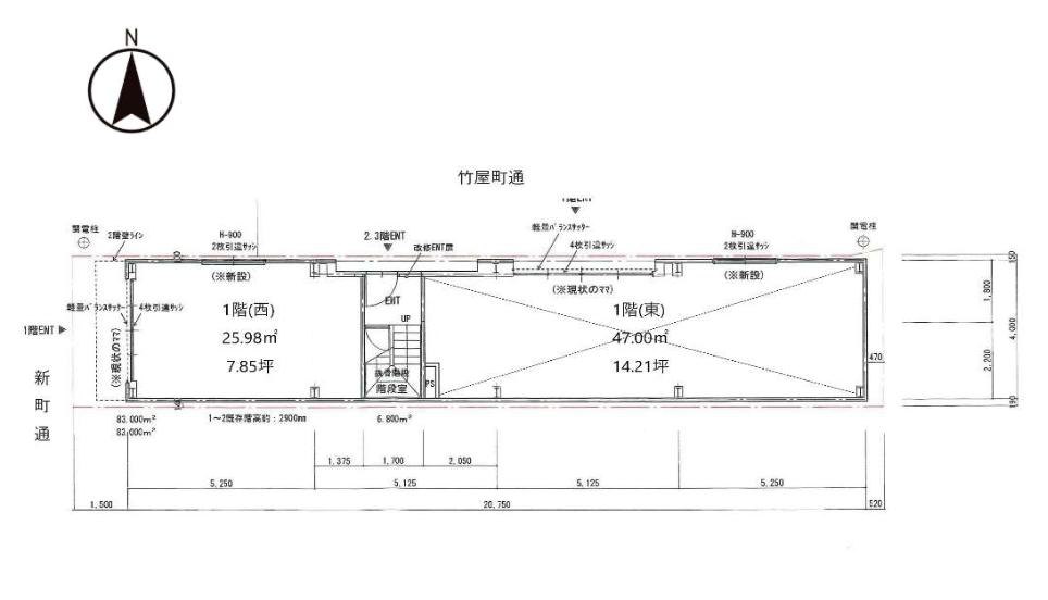
間取り

新町通・竹屋町通に面す1階テナント

賃料: 17.6万円 専有面積:25.98㎡

物件名:新町竹屋ビル(1F-西)

所在地:京都府京都市中京区新町通竹屋町下る弁財天町

物件概要

地下鉄烏丸線「丸太町」駅から徒歩約4分。新町通と竹屋町通に面する角地に位置する「新町竹屋ビル」1階区画のご紹介です。 専有面積は約25.98m2(約7.85坪)とコンパクトながら、通りに面した1階部分で視認性のある立地。周辺は落ち着いたオフィスや住宅が混在するエリアで、街中でありながら比較的静かな環境です。 小規模な物販店舗やサービス店舗、事務所利用など、街中で拠点を構えたい方にも検討しやすいサイズ感の区画。地下鉄駅からも近く、日々の通勤や来客のアクセスも良好です。 京都中心部でコンパクトな1階テナントをお探しの方は、ぜひご検討ください。

物件番号 18774
物件名 新町竹屋ビル(1F-西)
所在地 京都府京都市中京区新町通竹屋町下る弁財天町
最寄駅/徒歩何分 京都市営地下鉄烏丸線 丸太町駅まで 徒歩4分
所在階 1階
賃料 17.6万円
保証金 3ヶ月
敷金・礼金 礼金 1ヶ月
専有面積 25.98㎡
建物構造 鉄骨造階
取引態様 仲介
最終更新日 2026/03/06 18:26

同じエリアの物件

この物件を見た人はこちらの物件も見ています