1. HOME
  2. 物件詳細

河原町通沿いの一棟貸店舗

賃料: 132万円 専有面積:119.78㎡

物件名:恵比須町店舗

所在地:京都府京都市中京区河原町通三条上る恵比須町

NEW

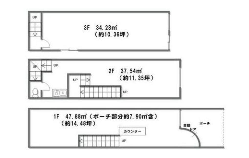
間取り

NEW

河原町通沿いの一棟貸店舗

賃料: 132万円 専有面積:119.78㎡

物件名:恵比須町店舗

所在地:京都府京都市中京区河原町通三条上る恵比須町

物件概要

京都市中京区河原町通三条上る恵比須町に位置する京都 テナント・貸店舗。地下鉄東西線「京都市役所前」駅から徒歩3分の場所にある一棟貸しの建物です。面積は約119.78m2で、坪換算では約36.24坪。木造亜鉛メッキ鋼板葺3階建の建物で、1階から3階までの構成となります。賃料は132万円(税込)、敷金480万円、礼金132万円。契約は定期借家契約で期間10年とされています。現況は賃貸中で、引渡しは2026年11月以降です。河原町通に面した立地で、インバウンド向けの物販などにも適した区画と記載されています。約30坪超の規模で、フロアごとに用途を分けながら事業を組み立てやすい構成です。立地特性を踏まえたターゲット設定や運用方法を検討しやすい貸店舗です。

物件番号 18965
物件名 恵比須町店舗
所在地 京都府京都市中京区河原町通三条上る恵比須町
最寄駅/徒歩何分 京都市営地下鉄東西線 京都市役所前駅まで 徒歩3分
所在階 1階
賃料 132万円
敷金・礼金 敷金 480万円・礼金 132万円
専有面積 119.78㎡
建物構造 木造階
取引態様 仲介
最終更新日 2026/04/07 14:21

同じエリアの物件

この物件を見た人はこちらの物件も見ています