1. HOME
  2. 物件詳細

西大路御池徒歩1分の2階貸店舗

賃料: 22万円 専有面積:100.43㎡

物件名:東中合町ビル(2F)

所在地:京都府京都市中京区西ノ京東中合町

NEW

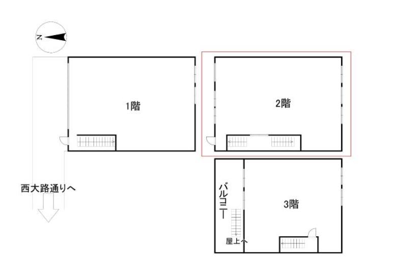
間取り

NEW

西大路御池徒歩1分の2階貸店舗

賃料: 22万円 専有面積:100.43㎡

物件名:東中合町ビル(2F)

所在地:京都府京都市中京区西ノ京東中合町

物件概要

京都市中京区西ノ京東中合町に位置する京都 テナント・貸店舗。地下鉄東西線「西大路御池」駅から徒歩1分の場所にある建物2階区画です。面積は100.43m2で、坪換算では約30.38坪。鉄骨造3階建のうち2階部分の募集となります。賃料は20万円、保証金3か月。普通借家契約5年で更新料は1か月、更新事務手数料33,000円(税込)とされています。現況は空きで、引渡し時期は相談。用途は飲食、オフィス、物販、サービス、美容・エステ、医療などが資料上で想定されています。約30坪の広さがあり、スクールやサービス店舗、来店型の事業などは使い方を検討しやすい規模感です。用途に応じてレイアウトを整える店舗設計や京都 店舗デザイン、店舗リノベーションの計画を組み合わせながら空間をつくることも検討の余地がある貸店舗です。

物件番号 18869
物件名 東中合町ビル(2F)
所在地 京都府京都市中京区西ノ京東中合町
最寄駅/徒歩何分 京都市営地下鉄東西線 西大路御池駅まで 徒歩1分
所在階 2階
賃料 22万円
保証金 3ヶ月
専有面積 100.43㎡
建物構造 鉄骨造階
取引態様 仲介
最終更新日 2026/03/14 07:48

同じエリアの物件

この物件を見た人はこちらの物件も見ています