1. HOME
  2. 物件詳細

神宮丸太町駅徒歩圏内|約34m2のコンパクトオフィス

賃料: 9.9万円 専有面積:34.61㎡

物件名:聖護院アパルトメント(1F)

所在地:京都府京都市左京区聖護院川原町

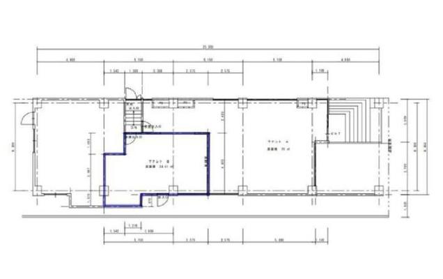
間取り

神宮丸太町駅徒歩圏内|約34m2のコンパクトオフィス

賃料: 9.9万円 専有面積:34.61㎡

物件名:聖護院アパルトメント(1F)

所在地:京都府京都市左京区聖護院川原町

物件概要

京阪「神宮丸太町駅」から徒歩圏内、京都市左京区聖護院川原町に位置する事務所区画のご紹介です。周辺には大学や医療施設、住宅が広がる落ち着いたエリアで、静かな環境で業務を行いたい方に向いている立地です。 専有面積は約34.61m2。コンパクトながらも使いやすい広さで、個人事務所や小規模な事業拠点として検討しやすい区画です。主要採光面は南向きで、室内に自然光を取り込みやすい点も特徴のひとつです。 建物は鉄筋コンクリート造の4階建で、本区画は1階部分。事務所用途を中心に検討しやすい物件で、京都市中心部へのアクセスもしやすく、業務拠点としての利便性も備えています。 落ち着いた環境で小規模オフィスを構えたい方に、ぜひご検討いただきたい一室です。詳細や内覧についてはお気軽にお問い合わせください。

物件番号 18793
物件名 聖護院アパルトメント(1F)
所在地 京都府京都市左京区聖護院川原町
最寄駅/徒歩何分 京阪鴨東線 神宮丸太町駅まで 徒歩8分
所在階 1階
賃料 9.9万円
保証金 36万円
専有面積 34.61㎡
建物構造 RC(鉄筋コンクリート)階
取引態様 仲介
最終更新日 2026/03/07 13:22

同じエリアの物件

この物件を見た人はこちらの物件も見ています

最近チェックした物件

  • 聖護院川原町店舗