1. HOME
  2. 物件詳細

神宮丸太町駅 徒歩8分|南向きスケルトン店舗(聖護院川原町)

賃料: 9.9万円 専有面積:34.61㎡

物件名:聖護院アパルトメント(1F-奥)

所在地:京都府京都市左京区聖護院川原町

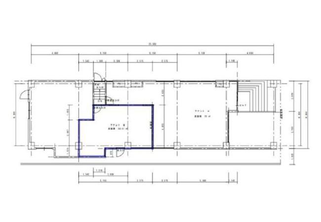
間取り

神宮丸太町駅 徒歩8分|南向きスケルトン店舗(聖護院川原町)

賃料: 9.9万円 専有面積:34.61㎡

物件名:聖護院アパルトメント(1F-奥)

所在地:京都府京都市左京区聖護院川原町

物件概要

京都市左京区聖護院川原町、京阪「神宮丸太町」駅から徒歩8分の立地にある1階店舗です。 鉄筋コンクリート造4階建の1階部分で、専有面積は約34.61m2。南向きで日当たりのよいスケルトン仕様となっています。 前テナントはレストランで、軽飲食から物販・サービス業まで幅広くご検討いただける物件です。 賃料は9.9万円、保証金36万円。管理費なし、共益費は月額4,400円。契約期間は10年の定期借家契約です。 現況は空室で、引渡し時期はご相談となります。

物件番号 17615
物件名 聖護院アパルトメント(1F-奥)
所在地 京都府京都市左京区聖護院川原町
最寄駅/徒歩何分 京阪鴨東線 神宮丸太町駅まで 徒歩8分
所在階 1階
賃料 9.9万円
保証金 36万円
専有面積 34.61㎡
建物構造 RC(鉄筋コンクリート)階
取引態様 仲介
最終更新日 2025/10/23 15:07

同じエリアの物件

この物件を見た人はこちらの物件も見ています

最近チェックした物件

  • 高材木町ビル2F
  • スパイラルスペース103 2階F号室
  • 上賀茂岩ケ垣内町テナント(1F)
  • トミタビル5F
  • 京都西大路士業ビル(2F)
  • やませビル(2F-B)