1. HOME
  2. 物件詳細

市役所前駅徒歩5分 地下1階58m2

賃料: 33万円 専有面積:58.46㎡

物件名:橘町テナント(B1F-5号)

所在地:京都府京都市中京区橘町

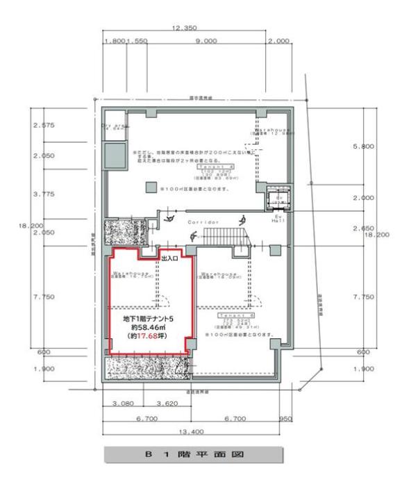
間取り

市役所前駅徒歩5分 地下1階58m2

賃料: 33万円 専有面積:58.46㎡

物件名:橘町テナント(B1F-5号)

所在地:京都府京都市中京区橘町

物件概要

京都市中京区橋町。地下鉄東西線「京都市役所前」駅徒歩5分の新築ビル地下1階区画です。 専有面積58.46m2(約17.68坪)。RC造5階建の地下1階部分。2026年3月完成予定で、引渡しは2026年3月上旬予定です。 賃料33.00万円。礼金3ヶ月、敷金2ヶ月、保証金なし。契約期間3年。管理費は月額22,000円。現況未完成。 飲食店利用可、スケルトン渡し。土日・祝日利用可、天井高2.5m以上を確保。用途地域は商業地域です。 同ビル地下1階には、約22坪・約30坪区画も募集中。立地や業種条件については、別途ご確認ください。

物件番号 18688
物件名 橘町テナント(B1F-5号)
所在地 京都府京都市中京区橘町
最寄駅/徒歩何分 京都市営地下鉄東西線 京都市役所前駅まで 徒歩5分
賃料 33万円
管理費 22000円
敷金・礼金 敷金 2ヶ月・礼金 3ヶ月
専有面積 58.46㎡
建物構造 RC(鉄筋コンクリート)階
取引態様 仲介
最終更新日 2026/02/25 10:14

同じエリアの物件

この物件を見た人はこちらの物件も見ています