1. HOME
  2. 物件詳細

富小路通面す新築1F北側区画

賃料: 57.2万円 専有面積:74.42㎡

物件名:橘町テナント(1F-2号)

所在地:京都府京都市中京区橘町

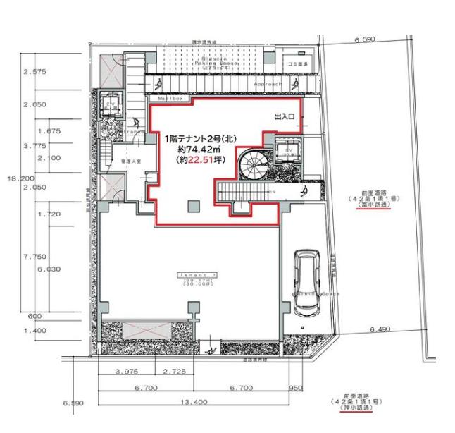
間取り

富小路通面す新築1F北側区画

賃料: 57.2万円 専有面積:74.42㎡

物件名:橘町テナント(1F-2号)

所在地:京都府京都市中京区橘町

物件概要

京都市中京区橋町、地下鉄東西線「京都市役所前」駅徒歩5分。2026年3月完成予定の新築ビル、1階北側区画のご紹介です。 専有面積は74.42m2。富小路通に面する1階テナントで、スケルトン渡し。天井高は2.5m以上を確保しています。飲食店利用も可能で、土日・祝日の営業についてもご相談いただけます。 構造はRC造5階建(地下1階付)の1階部分。契約期間3年。賃料は57.20万円、共益費22,000円/月。礼金3ヶ月、敷金2ヶ月、保証金なし。引渡しは2026年3月上旬予定です。 商業地域に位置し、市役所前エリアの動きある街並みに接する立地。新築ならではの自由度を活かし、コンセプトを形にしたい方に適した区画です。 詳細条件や業種可否については、別途ご確認ください。

物件番号 18671
物件名 橘町テナント(1F-2号)
所在地 京都府京都市中京区橘町
最寄駅/徒歩何分 京都市営地下鉄東西線 京都市役所前駅まで 徒歩5分
所在階 1階
賃料 57.2万円
管理費 22000円
敷金・礼金 敷金 2ヶ月・礼金 3ヶ月
専有面積 74.42㎡
建物構造 RC(鉄筋コンクリート)階
取引態様 仲介
最終更新日 2026/02/24 12:31

同じエリアの物件

この物件を見た人はこちらの物件も見ています

最近チェックした物件

  • 橘町テナント(1F-1号)
  • 鯉山町テナント(101)