1. HOME
  2. 物件詳細

祇園四条・宮川筋沿い2階貸店舗

賃料: 22万円 専有面積:35.21㎡

物件名:日宝リバーサイドビル(2F-A号室)

所在地:京都市東⼭区宮川筋1丁⽬

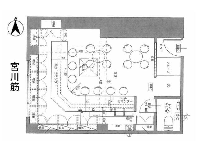
間取り

祇園四条・宮川筋沿い2階貸店舗

賃料: 22万円 専有面積:35.21㎡

物件名:日宝リバーサイドビル(2F-A号室)

所在地:京都市東⼭区宮川筋1丁⽬

物件概要

京都市東山区宮川筋1丁目に位置する、祇園四条駅徒歩3分とされる貸店舗区画です。建物は鉄骨造5階建の2階部分で、専有面積は約10.65坪。間取り図からは、ホールを中心にカウンターやバックヤード、トイレが配置された構成が読み取れ、店舗利用を前提とした区画となっています。賃料は月額22万円、礼金55万円、敷金50万円で、保証金の設定はありません。共益費は月額2万9,700円です。現在は使用中で、引渡し時期は相談となっています。商業地域内にあり、周辺環境とのバランスを考えながら、予約制のサービス業や小規模な物販など、来店人数を調整しやすい業態であれば検討しやすい条件といえます。京都 テナントや貸店舗を探す中で、祇園四条エリアでの出店を考える際、京都 店舗デザインや店舗設計、店舗リノベーションを前提に、空間と事業の関係を丁寧に整理しながら検討したい一件です。

物件番号 18522
物件名 日宝リバーサイドビル(2F-A号室)
所在地 京都市東⼭区宮川筋1丁⽬
最寄駅/徒歩何分 京阪本線 祇園四条駅まで 徒歩3分
所在階 2階
賃料 22万円
共益費 3 万円
敷金・礼金 敷金 50万円・礼金 55万円
専有面積 35.21㎡
建物構造 鉄骨造階
取引態様 仲介
最終更新日 2026/03/18 14:16

同じエリアの物件

この物件を見た人はこちらの物件も見ています

最近チェックした物件

  • プレサージュ祇園(2F-1号室)