1. HOME
  2. 物件詳細

北区紫竹・通り沿い1階の貸店舗

賃料: 11万円 専有面積:43.92㎡

物件名:エスタシオン21(1F)

所在地:京都府京都市北区紫竹上竹殿町

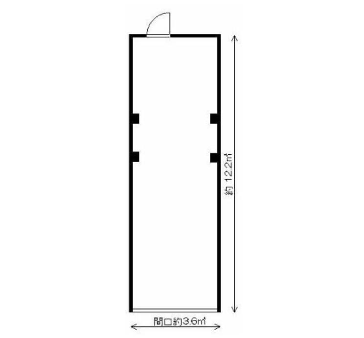
間取り

北区紫竹・通り沿い1階の貸店舗

賃料: 11万円 専有面積:43.92㎡

物件名:エスタシオン21(1F)

所在地:京都府京都市北区紫竹上竹殿町

物件概要

京都市北区紫竹エリア、御園橋通大宮通から入った通り沿いに位置する1階部分の貸店舗・事務所です。専有面積は約13.28坪で、間口約3.6m、奥行き約12.2mの細長い平面形状が特徴となっています。賃料は月額11万円、管理費は月額5,000円で、保証金は60万円です。現況は空きで、引渡しは即時と記載されています。用途としては飲食、オフィス、物販・サービス、美容、エステ、医療関連が想定されており、業態に応じた使い分けを検討しやすい条件です。周辺は住宅が多いエリアで、地域に根ざした運営スタイルとの相性を考えやすい立地といえます。改装や内装工事の可否、指定業者の有無については資料に記載がないため判断できませんが、京都でテナントや貸店舗を探す際に、広さと賃料のバランスを整理しながら検討したい一件です。

物件番号 18515
物件名 エスタシオン21(1F)
所在地 京都府京都市北区紫竹上竹殿町
最寄駅/徒歩何分 京都市営地下鉄烏丸線 北大路駅まで 徒歩22分
所在階 1階
賃料 11万円
管理費 5000円
保証金 60万円
専有面積 43.92㎡
建物構造 鉄骨造階
取引態様 仲介
最終更新日 2026/02/03 08:59

同じエリアの物件

この物件を見た人はこちらの物件も見ています