1. HOME
  2. 物件詳細

オフィス・ワン四条烏丸ビル 店舗A

賃料: 65万円 専有面積:64.05㎡

物件名:オフィスーワン四条烏丸(1F)

所在地:京都府京都市下京区室町通綾小路上る鶏鉾町

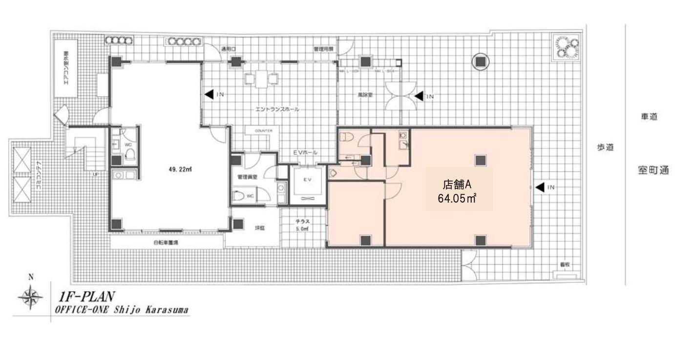
間取り

オフィス・ワン四条烏丸ビル 店舗A

賃料: 65万円 専有面積:64.05㎡

物件名:オフィスーワン四条烏丸(1F)

所在地:京都府京都市下京区室町通綾小路上る鶏鉾町

物件概要

地下鉄「四条駅」、阪急「烏丸駅」からともに徒歩2分。 京都のビジネスの中心ともいえる四条烏丸エリアに立地する、1階路面区画です。 京都経済センターの西側に位置し、人の流れや視認性の面でも安定感のある場所といえます。 募集区画は店舗A、専有面積は64.05m2。 来客動線を意識した店舗利用のほか、ショールームやサービス拠点など、立地を活かした使い方が検討しやすいサイズ感です。 建物は鉄骨造・地上13階建で、2007年築。共用部の管理状態も良好で、エントランスの印象もしっかりしています。 賃料は月額650,000円(税込)、保証金は3,900,000円。 契約期間は5年で、更新料は不要ですが、更新事務手数料が別途発生します。 また、保証金の返還条件については、契約年数に応じた割合が設定されていますので、長期的な資金計画とあわせての確認が必要です。 立地・建物ともに魅力のある物件ですが、条件面も含めて、事業計画との相性を踏まえながら慎重にご検討いただきたい区画です。 詳細条件や利用想定については、事前相談のうえでご案内可能です。

物件番号 18168
物件名 オフィスーワン四条烏丸(1F)
所在地 京都府京都市下京区室町通綾小路上る鶏鉾町
最寄駅/徒歩何分 京都市営地下鉄烏丸線 四条駅まで 徒歩2分
所在階 1階
賃料 65万円
保証金 390万円
専有面積 64.05㎡
建物構造 鉄骨造階
取引態様 仲介
最終更新日 2025/12/18 09:37

同じエリアの物件

この物件を見た人はこちらの物件も見ています

最近チェックした物件

  • オフィス−ワン四条烏丸1204号室