1. HOME
  2. 物件詳細

三条駅徒歩1分・河原町通すぐの貸店舗(約49坪)

賃料: 135万円 専有面積:164.83㎡

物件名:フォーラム三条ビル(3F)

所在地:京都府京都市中京区三条通河原町東入中島町

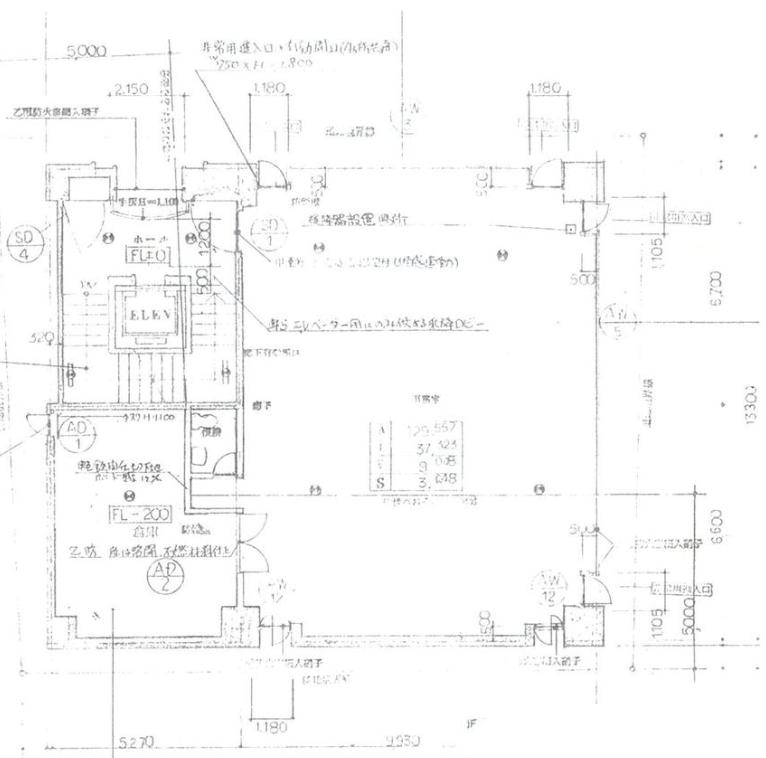
間取り

三条駅徒歩1分・河原町通すぐの貸店舗(約49坪)

賃料: 135万円 専有面積:164.83㎡

物件名:フォーラム三条ビル(3F)

所在地:京都府京都市中京区三条通河原町東入中島町

物件概要

京都市中京区三条通河原町東入中島町にある「フォーラム三条ビル」3階部分の貸店舗です。 専有面積は約164.83m2(約49.86坪)。鉄骨鉄筋コンクリート造・地下2階付4階建の3階部分に位置し、京阪本線「三条」駅から徒歩約1分、地下鉄東西線「京都市役所前」駅から徒歩約5分、阪急「京都河原町」駅からも徒歩圏内です。 現在はドラッグストアとして利用されており、引渡しは11月1日以降を予定。設備は電気・上下水道・都市ガスのほか、エレベーターが備わっています。業種については相談可能です。 京都の中心エリアで店舗展開をお考えの方、店舗デザインやリノベーションのご相談は設計から施工まで一貫対応できるコトスタイルへ。業種に合わせたプランニングをお手伝いします。

物件番号 17509
物件名 フォーラム三条ビル(3F)
所在地 京都府京都市中京区三条通河原町東入中島町
最寄駅/徒歩何分 阪急京都線 京都河原町駅まで 徒歩8分
所在階 3階
賃料 135万円
保証金 10ヶ月
専有面積 164.83㎡
建物構造 SRC(鉄骨鉄筋コンクリート)階
取引態様 仲介
最終更新日 2025/10/16 14:05

同じエリアの物件

この物件を見た人はこちらの物件も見ています