1. HOME
  2. 物件詳細

東本願寺エリアの一棟貸大型店舗

賃料: 69.3万円 専有面積:337.74㎡

物件名:高槻町一棟店舗

所在地:京都府京都市下京区上珠数屋町通烏丸東入高槻町

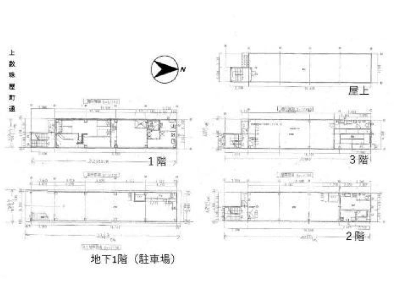
間取り

東本願寺エリアの一棟貸大型店舗

賃料: 69.3万円 専有面積:337.74㎡

物件名:高槻町一棟店舗

所在地:京都府京都市下京区上珠数屋町通烏丸東入高槻町

物件概要

京都市下京区上数珠屋町烏丸東入る高槻町に位置する京都 テナント・貸店舗。地下鉄烏丸線「五条」駅から徒歩4分の場所にある一棟貸しの建物です。面積は337.74m2で、坪換算では約102.17坪。鉄骨造地下1階付地上3階建の構造で、地下から3階までの構成となります。賃料は693,000円(税込)、保証金2,520,000円。契約は定期建物賃貸借契約で期間10年とされています。現況は入居中で、引渡しは現状有姿渡しと記載されています。約100坪を超える規模で、フロアごとに用途を分けながら事業を構成しやすい建物です。東本願寺周辺エリアに位置しており、立地特性や動線を踏まえながら、用途に応じた使い方を検討しやすい貸店舗です。

物件番号 18964
物件名 高槻町一棟店舗
所在地 京都府京都市下京区上珠数屋町通烏丸東入高槻町
最寄駅/徒歩何分 京都市営地下鉄烏丸線 五条駅まで 徒歩4分
所在階 1階
賃料 69.3万円
保証金 4ヶ月
専有面積 337.74㎡
取引態様 仲介
最終更新日 2026/04/10 16:46

同じエリアの物件

この物件を見た人はこちらの物件も見ています