- HOME
- 物件詳細
物件詳細
五条駅徒歩1分「第5キョートビル2階」― 烏丸通に面した176m2の広々オフィス・店舗空間
賃料: 70.69万円 専有面積:176.73㎡
物件名:第5キョートビル(2F-全フロア)
所在地:京都府京都市下京区烏丸通六条上る北町
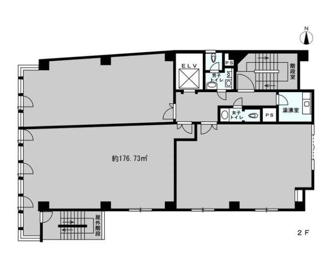
間取り
五条駅徒歩1分「第5キョートビル2階」― 烏丸通に面した176m2の広々オフィス・店舗空間
賃料: 70.69万円 専有面積:176.73㎡
物件名:第5キョートビル(2F-全フロア)
所在地:京都府京都市下京区烏丸通六条上る北町
物件概要
地下鉄烏丸線「五条」駅から徒歩わずか1分、烏丸通に面する利便性抜群の立地にある「第5キョートビル」2階部分の貸店舗・事務所です。 専有面積は約176.73m2(約53坪)とゆとりある広さで、オフィスのほか、来店型サービス店舗などにも適した空間。トイレは2箇所設置されており、スタッフや来客が多い業態にも対応できます。 1982年築のSRC造8階建てビルで、エレベーター完備。駐車場(3台分空きあり)や駐輪場・バイク置き場も利用可能です。周辺にはコンビニや銀行、郵便局などの生活利便施設が充実しており、京都駅からも徒歩圏内という恵まれたロケーションです。 賃料は月額70.69万円(保証金12ヶ月)。即入居可能で、交通アクセス・環境ともに整った快適なワークプレイスをお探しの方におすすめの物件です。
| 物件番号 | 17479 |
|---|---|
| 物件名 | 第5キョートビル(2F-全フロア) |
| 所在地 | 京都府京都市下京区烏丸通六条上る北町 |
| 最寄駅/徒歩何分 | 京都市営地下鉄烏丸線 五条駅まで 徒歩1分 |
| 所在階 | 2階 |
| 賃料 | 70.69万円 |
| 保証金 | 12ヶ月 |
| 専有面積 | 176.73㎡ |
| 建物構造 | SRC(鉄骨鉄筋コンクリート)階 |
| 取引態様 | 仲介 |
| 最終更新日 | 2025/10/10 18:18 |