1. HOME
  2. 物件詳細

五条駅徒歩1分「第5キョートビル2階」― 烏丸通面す利便性の高いオフィス空間

賃料: 48.31万円 専有面積:120.79㎡

物件名:第5キョートビル(2F-西フロア)

所在地:京都府京都市下京区烏丸通六条上る北町

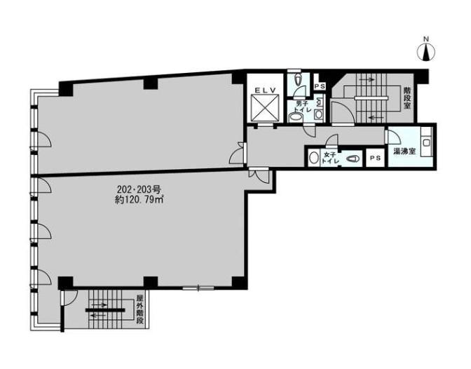
間取り

五条駅徒歩1分「第5キョートビル2階」― 烏丸通面す利便性の高いオフィス空間

賃料: 48.31万円 専有面積:120.79㎡

物件名:第5キョートビル(2F-西フロア)

所在地:京都府京都市下京区烏丸通六条上る北町

物件概要

地下鉄烏丸線「五条」駅から徒歩1分、京都駅からも徒歩圏内の好立地。烏丸通沿いに建つ「第5キョートビル」2階(202・203号室)の貸店舗・事務所です。 専有面積は約120.79m2(約36坪)で、使いやすいワンフロアタイプ。トイレが2箇所設置されており、複数名での利用にも対応できます。エレベーターや駐車場(3台分空きあり)、駐輪場・バイク置き場も完備されており、来客の多い事業にも便利です。 周辺にはコンビニや銀行、郵便局などの生活利便施設が揃い、オフィス街としても人気の高いエリア。賃料は月額48.31万円(保証金12ヶ月)、即入居可能です。 アクセス性と快適性を兼ね備えた本物件は、事務所や来店型ビジネスなど幅広い用途におすすめです。

物件番号 17480
物件名 第5キョートビル(2F-西フロア)
所在地 京都府京都市下京区烏丸通六条上る北町
最寄駅/徒歩何分 京都市営地下鉄烏丸線 五条駅まで 徒歩1分
所在階 2階
賃料 48.31万円
保証金 12ヶ月
専有面積 120.79㎡
建物構造 SRC(鉄骨鉄筋コンクリート)階
取引態様 仲介
最終更新日 2025/10/10 18:02

同じエリアの物件

この物件を見た人はこちらの物件も見ています

最近チェックした物件

  • 丹羽ビル(3F)
  • 第5キョートビル(2F-東フロア)