1. HOME
  2. 物件詳細

北山通面す・駐車場付き1階店舗

賃料: 19.8万円 専有面積:48.26㎡

物件名:sawarabi kitayama(1F)

所在地:京都府京都市左京区松ケ崎芝本町

NEW

間取り

NEW

北山通面す・駐車場付き1階店舗

賃料: 19.8万円 専有面積:48.26㎡

物件名:sawarabi kitayama(1F)

所在地:京都府京都市左京区松ケ崎芝本町

物件概要

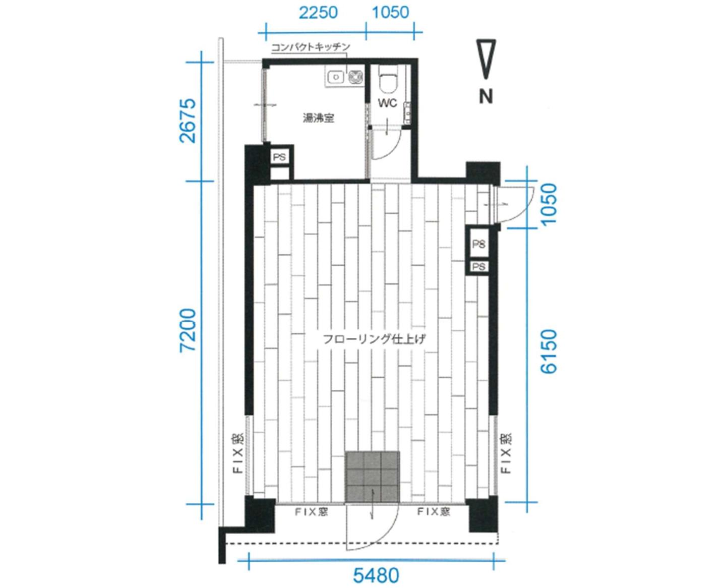
京都市左京区松ヶ崎芝本町、北山通に面した1階部分の店舗・事務所区画です。専有面積は約14.59坪で、間口は約5.4mと記載されており、通りに対して開口を確保したプランとなっています。室内はフローリング仕上げで、照明、空調、トイレ、ミニキッチンが残置された状態での引渡し予定です。賃料は月額18万円(税別)、礼金20万円、保証金60万円、契約期間は5年の普通借家契約となっています。敷地内には小型車専用の駐車場1台分があり、月額1万5,000円(税別)で利用可能です。用途は事務所や店舗として想定されており、飲食店は不可、軽飲食については相談とされています。改装や内装工事の詳細、指定業者の有無については資料に記載がないため判断できませんが、京都でテナントや貸店舗を検討する中で、北山通沿いで規模を抑えた出店や事務所利用を検討する際に、条件整理の候補として確認しておきたい物件です。

物件番号 18504
物件名 sawarabi kitayama(1F)
所在地 京都府京都市左京区松ケ崎芝本町
最寄駅/徒歩何分 京都市営地下鉄烏丸線 松ヶ崎駅まで 徒歩3分
所在階 1階
賃料 19.8万円
保証金 60万円
敷金・礼金 礼金 20万円
専有面積 48.26㎡
建物構造 RC(鉄筋コンクリート)階
取引態様 仲介
最終更新日 2026/02/03 13:09

同じエリアの物件

この物件を見た人はこちらの物件も見ています